Стрела крана башенного крана: Устройство и разновидности стрел башенных кранов
Стрелы башенных кранов
Стрелы башенных кранов
Стрелы башенных кранов в зависимости от способа изменения вылета разделяются на подъемные и балочные.
Наибольшее распространение получили краны с подъемной стрелой. Это объясняется тем, что они имеют на 15—20% меньшую массу по сравнению с кранами, оборудованными балочными стрелами, более технологичны в изготовлении, их проще монтировать и перевозить.
К недостаткам кранов с подъемными стрелами относятся: отсутствие горизонтального перемещения груза при изменении вылета; необходимость повышенной мощности привода для подъема стрелы и груза при изменении вылета; сравнительно большая величина минимального вылета. Однако величина минимального вылета для передвижных кранов не играет существенной роли, так как, совмещая два движения (поворот и передвижение крана), всегда можно подать груз в любую точку строительной площадки. Эти недостатки устранены в новых конструкциях кранов, в результате чего краны с подъемной стрелой с успехом применяют как на погрузочно-разгрузочных, так и на монтажных работах.
Рекламные предложения на основе ваших интересов:
Дополнительные материалы по теме:
Поскольку нагрузки на подвесную подъемную стрелу приложены вдоль ее оси эта стрела при подъеме груза работает на центральное сжатие, в то время как балочные стрелы, кроме сжимающих, испытывают также и изгибающие нагрузки от массы грузовой тележки и груза. Отсутствие изгибающих нагрузок позволяет облегчить конструкцию. Кроме того, малые размеры подъемной стрелы в поперечном сечении по сравнению с размерами других стрел облегчают условия демонтажа и перевозки крана с объекта на объект.
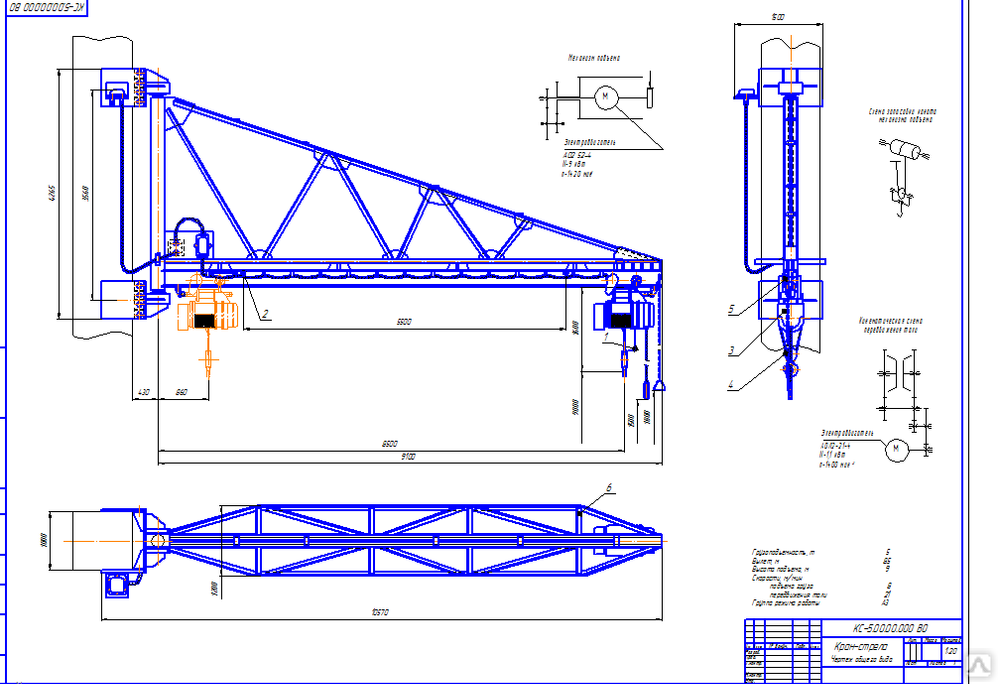
По конструкции стрелы делятся на подвесные (рис. 22, а, е), подвесные с балансиром (рис. 22, б), подвесные шарнирно-сочлененные (с гуськом) (рис. 22, в), подвесные со стойками (рис. 22, г) и молото-видные (рис. 22, д, ж). Наиболее просты подвесные подъемные стрелы, которые получили массовое распространение.
Рис. 22. Виды стрел:
а — подъемная подвесная, б — подъемная подвесная с балансиром, в — подъемная подвесная с гуськом, г — подъемная подвесная со стойками, д — подъемная молотовидная, е — балочная подвесная, ж — балочная молотовидная; 1 — балансир, 2 — гусек, 3 — стойка
В плане подъемные стрелы имеют различную конфигурацию (рис.
23). По конструкции поясов и раскосов стрелы изготовляют решетчатыми ; из уголков или труб или сплошностенными из труб большого диаметра, гнутого профиля или листа.
Наиболее совершенную конструкцию имеют решетчатые стрелы из труб, которые по сравнению с уголковыми более легки и прочны. Кроме того, из-за хорошей обтекаемости труб ветровые нагрузки на ; трубчатые конструкции значительно ниже. Все это позволяет уменьшить опрокидывающий момент, действующий на кран, и тем самым повысить устойчивость крана. Сейчас разработаны оптимальные конструкции 4, 8 решетчатых подъемных стрел, обеспечивающие их минимальную массу и невысокую стоимость изготовления.
У кранов с установочным изменением вылета опорный шарнир соединения стрелы с башней выполнен на подшипниках скольжения, у кранов с маневровым изменением вылета — чаще на подшипниках качения.
Рис. 23. Конструктивные схемы стрел:
а — вид в плане, б — поперечные сечения подъемных стрел, в — поперечное сечение балочных стрел; 1 — трехсекционная, 2 — трапециевидная, 3 — А-образная, 4 — оптимальной конструкции, 5 — уголковой конструкции, 6 — четырехгранная решетчатая из труб, 7 —трехгранная решетчатая из труб; 8 — то же, оптимальной конструкции, 9 — из гнутого профиля
По двесные стрелы со стойками, примененные на кране МСК-5-20, по характеру работы и конструкции аналогичны подвесным стрелам.
Шарнирно-сочлененные стрелы (с гуськами) используют, как правило, когда требуется увеличить вылет и высоту подъема без переделки стрелы и изменения высоты башни (кран КБ-160.4).
Молотовидные подъемные и балочные стре-л ы работают на изгиб, поэтому они значительно тяжелее других типов стрел. Кроме того, из-за значительных габаритов по высоте эти стрелы тРУДно перевозить.
Балочную подвесную стрелу (рис. 24) имеет кран КБк-250. Стрела имеет трехгранное сечение. Грузовая тележка передвигается по двум нижним поясам. Верхний пояс и раскосы — трубчатые. Нижние пояса (ездовые балки) коробчатого сечения из двух сваренных уголков. Стрела имеет два рабочих положения: горизонтальное и ломаное, когда опорная секция стрелы устанавливается вертикально и крепится к верху оголовка, а головная секция размещается наклонно под углом 30° к горизонту. В этом случае удается значительно увеличить высоту подъема крана. Благодаря специальной схеме запасовки грузового каната обеспечивается горизонтальное перемещение груза при движении грузовой тележки по наклонно расположенной стреле.
Рис. 24. Балочная подвесная стрела крана КБк-250: 1 — опорная секция, 2 — стойка, 3 — головная секция
Башенный кран с маховой стрелой по доступным ценам
Эта разновидность строительной спецтехники представляет собой устройство, стрела которого благодаря особенностям конструкции способна подниматься почти до вертикального положения (как правило, порядка 86 градусов относительно стандартного положения). Такая опция позволяет использовать кран в сложных условиях, например, в условиях плотной застройки или на перегруженной техникой стройплощадке, при необходимости обходить препятствия, расположенные в радиусе действия стрелы крана.
Potain MR 90 C
- Грузоподъемность: 8 тонн;
- Высота: 51,2 метра;
- Длина стрелы: 45 метров.
цена по запросу
Заказать / консультация
Potain MR 160 C
- Грузоподъемность: 10 тонн;
- Высота: 61,1 метр;
- Длина стрелы: 50 метров.

цена по запросу
Заказать / консультация
Potain MR 225 A
- Грузоподъемность: 14 тонн;
- Высота: 56 метров;
- Длина стрелы: 55 метров.
цена по запросу
Заказать / консультация
Potain MR 295 h26
- Грузоподъемность: 16 тонн;
- Высота: 70,4 метров;
- Длина стрелы: 60 метров.
цена по запросу
Заказать / консультация
Potain MR 295 h30
- Грузоподъемность: 20 тонн;
- Высота: 70,к метров;
- Длина стрелы: 60 метров.
цена по запросу
Заказать / консультация
Potain MR 298
- Грузоподъемность: 24 тонн;
- Высота: 70,4 метров;
- Длина стрелы: 60 метров.

цена по запросу
Заказать / консультация
Potain MR 418
- Грузоподъемность: 24 тонн;
- Высота: 89,4 метра;
- Длина стрелы: 60 метров.
цена по запросу
Заказать / консультация
Potain MR 608
- Грузоподъемность: 32 тонн;
- Высота: 77,8 метров;
- Длина стрелы: 60 метров.
цена по запросу
Заказать / консультация
Предпосылки появления башенного крана с подъемной стрелой
Родиной этого устройства является Британская Империя. В силу особенностей ее законодательства воздушное пространство над объектом собственности считается принадлежащим собственнику.
В таких условиях строительство на соседних участках осложняется высокой вероятностью нарушения закона с последующими судебными исками.
Разработка устройств с маховой стрелой решила проблему радикальным способом – теперь те, кто, оценив новинку, приняли решение купить башенный кран с маховой стрелой, могли беспрепятственно обходить препятствия в виде чужой собственности, не снижая темпа и качества работ. По мере уплотнения застройки, особенно, в крупных городах, востребованность моделей с подъемной стрелой возрастала с каждым годом. И на сегодняшний день такая техника пользуется на профильном рынке устойчивым спросом.
Среди значимых достоинств этой спецтехники, в первую очередь, следует отметить:
- Увеличенную площадь обслуживаемой зоны;
- Внушительную грузоподъемность;
- Оптимальное сочетание параметров вылета и грузоподъемности;
- Возможность использования нескольких башенных кранов в пределах одной стесненной строительной площадки.
Имеет ли смысл купить башенный кран с маховой стрелой или более целесообразно арендовать его для временного пользования? На коротких временных промежутках эксплуатация арендованной техники может оказаться более выгодной, однако в долгосрочной перспективе покупка более рациональна, поскольку представляет собой разовое вложение, пусть немалое, но достаточно быстро окупаемое, и в будущем такое решение будет ориентировано исключительно на получение прибыли.
Недорого, в комфортном формате, с гарантией качества и своевременного сервисного обслуживания купить башенный кран с маховой стрелой можно в компании «СМП». Обращайтесь – мы подберем модель, оптимально отвечающую вашим запросам!
Что такое крановая стрела?
Когда вы видите подъемный кран на строительной площадке, первое, что вы, вероятно, заметите, это его длинная рука, уходящая в небо. Эта часть крана называется стрелой и является одной из самых заметных и важных частей машины.
Стрела крана представляет собой длинную фиксированную или гидравлическую стрелу, которая используется для перемещения крупных объектов в строительстве. На него приходится большая часть веса при размещении груза, а его длина определяет максимальный вылет крана. Крановые стрелы могут выполнять различные функции и внешний вид в зависимости от типа крана.
Стрела крана может выглядеть как простое устройство, но для ее работы требуется высокая точность. Читайте дальше, чтобы узнать, как работает стрела крана и взаимодействует с другими важными компонентами крана.
Существует два типа стрел кранов: решетчатые стрелы и гидравлические стрелы. Хотя они оба служат одной и той же цели подъема и перемещения предметов и материалов, они работают по-разному.
Решетчатая штанга
Решетчатые стрелы состоят из нескольких стальных стержней, сваренных вместе в форме буквы «W» или «V». Эта решетчатая конструкция увеличивает прочность стрелы и минимизирует ее вес, что делает ее идеальной для башенных и гусеничных кранов.
Решетчатые стрелы остаются фиксированной длины, но могут поворачиваться, наклоняться и перемещаться из стороны в сторону при перемещении груза. Поскольку самые большие краны часто имеют решетчатые стрелы, инженеры должны тщательно рассчитать угол наклона, необходимый для подъема тяжелых грузов при сохранении устойчивости крана. Кабина оператора оснащена рядом кнопок, джойстиков и компьютерной системой безопасности для управления движениями стрелы. Как только стрела находится в правильном положении, оператор использует подъемную систему, движущуюся вдоль стрелы, для подъема и опускания груза.
Гидравлическая стрела
В отличие от решетчатых стрел, стрелы гидравлического крана могут выдвигаться на разную длину и складываться для транспортировки. Они часто имеют телескопический вид или похожи на шест и работают с помощью мощной гидравлической системы.
Эта система работает путем закачки гидравлической жидкости в цилиндры с поршнями. Насос создает давление, которое толкает поршни внутрь и наружу, позволяя секциям стрелы крана выдвигаться или втягиваться. Гидравлические системы чаще всего используются для телескопических стрел кранов, но их можно использовать и для складных стрел кранов.
Складные крановые стрелы складываются, а не выдвигаются, как телескоп, что делает их идеальными для компактных строительных площадок, требующих сверхточных перемещений. В них используется та же гидравлическая система, что и в телескопических стрелах, но для работы требуется больше гидравлических цилиндров, поскольку они содержат больше точек сочленения.
Из-за схожих характеристик краны и тележки со стрелой легко спутать друг с другом. Оба используются для подъема тяжелых материалов на строительных площадках, и стрелы являются общими элементами обеих машин. Однако некоторые ключевые отличия отличают их друг от друга.
Краны
Краны могут быть как стационарными, так и мобильными и бывают разных размеров и стилей. Они предназначены для подъема тяжелых материалов и используют для этого систему стабилизаторов и противовесов. Некоторые из наиболее распространенных типов включают башенные, вездеходные, гидравлические, стационарные и автокраны.
Тележки со стрелой
Тележки со стрелой обычно меньше кранов и предназначены для подъема более легких грузов. Они управляются как обычные грузовики, что делает их быстрее и легче маневрировать на рабочих площадках. В отличие от кранов, им не требуются противовесы или выносные опоры для обеспечения устойчивости, а используются только гидравлические стрелы.
Кроме того, некоторые грузовики со стрелой используют погрузочную корзину для подъема обслуживающего персонала в недоступные места.
Краны состоят из нескольких частей, которые работают вместе для безопасного подъема и транспортировки тяжелых грузов. Некоторые из основных компонентов, которые взаимодействуют со стрелой крана, включают:
Удлинитель
Удлинители иногда путают со стрелами крана из-за их сходного внешнего вида. На решетчатых кранах стрела часто выступает из стрелы, чтобы увеличить расстояние между грузом и основной системой поддержки крана. Стрелы являются обычными элементами башенных кранов, и их можно отсоединять по мере необходимости для различных типов работ.
Противовес и выносные опоры
Поскольку краны поднимают такие тяжелые грузы, им требуются противовесы и выносные опоры, чтобы компенсировать вес груза и предотвратить его опрокидывание. Противовесы обычно устанавливаются на задней части крана за стрелой, и они могут штабелироваться и сниматься для размещения грузов разного размера.
Аутригеры — это тяжелые балки, используемые на мобильных кранах для повышения устойчивости при работе крана. При развертывании они выдвигаются из шасси и используют плоскую подушку для равномерного распределения нагрузки крана. Выдвижные опоры используют гидравлическую систему для выдвижения и складывания, и для правильной работы им требуется плоская поверхность.
Трос
Металлические тросы, используемые кранами для подъема и поддержки тяжелых грузов, называются тросами. Проволочный канат изготовлен из нескольких стальных проволок, скрученных в спираль вокруг сердечника, и предназначен для того, чтобы выдерживать экстремальные нагрузки без разрыва. Проволочный трос проходит вдоль стрелы и является основным компонентом подъемного крана, системы, отвечающей за подъем и опускание грузов.
Грузовой блок
Грузовой блок — это устройство, которое свисает с концов тросов крана и прикрепляется к грузу. Обычно он сделан из стали и содержит крюк, подшипник, вертлюг и набор шкивов, достаточно тяжелых, чтобы удерживать натяжение троса, когда он не прикреплен к грузу.
Верхняя тележка
Верхняя тележка крана содержит несколько компонентов крана, включая двигатель, кабину и тросовый барабан. Стрела крепится к верхней тележке с помощью набора креплений стрелы, и оператор манипулирует органами управления краном с этой точки обзора.
Крановые стрелы — одна из самых известных частей крана, и не зря. Это универсальные машины, которые бывают разных форм, размеров и стилей. Крановые стрелы необходимы для подъема самых тяжелых грузов в строительстве, и без них не было бы самых высоких зданий в мире.
Похожие сообщения
Башенные краны — все, что вам нужно знать
Бесспорным чемпионом по грузоподъемности среди строительных кранов является всемогущий башенный кран. Без него некоторые из самых знаковых городских горизонтов выглядели бы совершенно иначе. Размышляя об этих основных элементах строительной площадки, большинство людей не могут не задаться вопросом, как они могут функционировать.
Из-за высокой и стройной фигуры башенных кранов трудно поверить, что они могут нести такой большой вес. Если вам интересно узнать об этих чудесах строительного мира, мы вам поможем. Прочтите, чтобы раз и навсегда ответить на все ваши вопросы, связанные с башенными кранами.
Эволюция башенного крана Деррик-башенные краны были первыми башенными кранами, увидевшими свет. Эти подъемные инструменты, названные в честь типа виселицы, разработанной Томасом Дерриком, имели стрелу, прикрепленную к вращающемуся основанию с шарниром. В то время не было возможности арендовать оборудование башенного крана. Строительные бригады должны были придумать этот оригинальный подъемный механизм.
Начало 20-го века принесло новую конструкцию. Строители устали пытаться маневрировать крупной тяжелой техникой в густонаселенных городских районах. Это привело к созданию козлового башенного крана. Его башня отличалась подвесными балками и тележками. Однако эта модель была не такой эффективной, так как дополнительные элементы делали ее слишком тяжелой для большинства городских условий 9.
0003
Башенный кран, который мы знаем и любим, появился в 1949 году. Немец Ганс Либхерр разработал машину для поддержки послевоенных усилий по восстановлению крупных городов. Конструкция Liebherr отличалась вращающейся башней и горизонтальным рабочим рычагом. Он имел 360-градусный диапазон, что значительно облегчало строительные работы. Вряд ли Либхерр знал, что его дизайн станет основным источником вдохновения для будущих прототипов.
В 1970-х годах большинство производителей прекратили выпуск башенных кранов с гидравлическим приводом, перейдя вместо этого на электрические альтернативы. Современные модели имеют десятки функций, о которых крановщики прошлого могли только мечтать. Сегодня башенные краны более мощные, универсальные и энергоэффективные, чем когда-либо.
Значение башенных кранов на строительной площадке Сегодняшние башенные краны позволяют девелоперским компаниям работать быстрее и эффективнее. Эти тяжелые скобы необходимы для легкого решения самых трудных задач.
Представьте себе большую строительную площадку без единого башенного крана на территории. Даже весь рабочий персонал на строительной площадке не мог поднять электрогенератор на несколько лестничных пролетов.
Строительная отрасль отстала бы на века, если бы не башенные краны. Мы будем скучать не только по величественным небоскребам современных городов, но и по их мостам, надземным железным дорогам и многому другому. Строительные площадки будут намного менее энергоэффективными.
Как работают башенные краны и для чего они используются?Башенный кран используется на строительных площадках по всему миру. Их кажущиеся бесконечными башни возвышаются на сотни футов над землей, усеивая горизонт практически каждого крупного города. Эти гигантские инструменты спасают жизнь, когда проект требует подъема тяжелых грузов на большую высоту, но покупка башенного крана может быть довольно дорогой. Вот почему подрядчики часто ищут башенные краны в аренду.
Помимо того, что башенные краны придают непревзойденный городской вид, они удобны для подъема стали, бетона и других тяжелых материалов.
Они также предлагают более легкую альтернативу переноске громоздкого оборудования.
Функционирование башенного крана во многом зависит от его компонентов. Чтобы лучше понять возможности башенного крана, давайте рассмотрим его основные элементы.
Опора основанияОпора основания расположена в нижней части башни и часто крепится к бетонной подушке на земле. В качестве альтернативы базовая опора может быть прикреплена к стальному ростверку или балластному шасси, установленному на земле или поверх существующей конструкции.
БашняБашня, также известная как мачта, представляет собой вертикальный элемент, придающий крану значительную высоту. Этот компонент простирается снизу вверх и поддерживает другие элементы, такие как кабина, крюк и противовесы. Башни часто имеют стальную решетку для дополнительной прочности.
Поворотная платформа
Поворотная платформа — это часть крана, позволяющая вращать стрелу.
Этот компонент использует ту же технологию, которую мы часто видим в ветряных мельницах. Благодаря этому стрела имеет более широкий диапазон движения.
Кабина — это ящик, в котором сидит оператор во время работы с башенным краном. Он содержит компьютер и джойстики, а также системы управления.
Стрела или рабочая стрелаСтрела, также известная как рабочая стрела крана, представляет собой горизонтальный компонент, выступающий из верхней части башни. Целью этого элемента является поддержка и позиционирование поднимаемого груза.
Тележка и блок крюкаТележки — это детали, которые перемещаются вперед и назад по стреле. Блок крюка служит системой шкивов, которая позволяет крюку перемещаться вверх и вниз по башне.
Противоугонная стрела Противодействующая стрела выдвигается в направлении, противоположном стреле, и помогает башенному крану сохранять равновесие.
Противовес уравновешивает нагрузку подъемника. Без них грузоподъемность должна была бы быть значительно ниже для сохранения устойчивости. Вы найдете этот важный элемент в задней части ответной стрелы, напротив стрелы. Некоторые распространенные материалы противовеса включают железобетон и сталь.
Почему башенные краны не опрокидываются?Вы когда-нибудь смотрели на башенный кран и замечали, что он наклоняется? Ваши глаза вас не обманывают, но это не обязательно повод для беспокойства. Сталь, используемая в конструкции крана, прочная и жесткая, но даже сталь обладает некоторой гибкостью. Наклон, который вы видите, скорее всего, связан с изгибом стали, поскольку различные нагрузки уравновешиваются друг относительно друга.
Башенный кран, как и большинство кранов, работает за счет рычага и равновесия. Можно сказать, что башенный кран — это рычаг поверх рычага.
Стрела и противовес служат первым рычагом, уравновешивающим поднятый груз противовесами.
Если на крюке нет нагрузки, противовесы приведут к тому, что кран будет несколько разбалансирован по направлению к задней части, и кран отклонится назад. По мере приложения нагрузки к крюку кран будет постепенно наклоняться вперед из-за смещения баланса груза по отношению к противовесам. Это нормально и ожидаемо. Вы могли видеть несколько футов движения в верхней части крана при подъеме тяжелого груза с помощью высокого крана.
Поскольку масса противовеса фиксирована, а поднимаемый груз сильно различается, обычно в верхней части крана возникает некоторый уровень дисбаланса. Этот дисбаланс приводит к возникновению силы в верхней части крана, которая затем уравновешивается через башню размером и массой основания. То есть мачта башни по сути является еще одним рычагом.
В конечном счете, масса и размер фундамента рассчитаны на обеспечение устойчивости крана к этим рабочим нагрузкам и другим факторам.
Сборка и разборка башенного крана Если основанием крана является бетонный фундамент, его заливают за несколько недель до прибытия крана, чтобы дать ему возможность правильно застыть перед сборкой.
После того, как кран прибудет на место, первое, что нужно сделать, это построить мачту, сложив секции башни вертикально. После возведения мачты поворотный стол устанавливается на вершину мачты, а горизонтальные компоненты добавляются в последнюю очередь (стрела, противовес и противовесы).
Все вышеперечисленные действия требуют использования вспомогательного крана и достаточной площадки для укладки компонентов крана на земле.
При необходимости башенный кран может подняться на большую высоту. Для этого на вершине мачты обычно устанавливается подъемная рама, которая соединяется с поворотной платформой. Затем кран уравновешивается, а поворотная платформа отсоединяется от мачты. Подъемная рама полностью охватит несколько секций башни и, наряду с операцией балансировки, гарантирует, что верхняя часть крана не упадет с мачты. В этот момент подъемная рама использует гидравлические домкраты, чтобы поднять верхнюю часть крана настолько, чтобы вставить еще одну секцию башни в верхнюю часть мачты.
Затем этот процесс можно повторить, чтобы подняться по крану выше.
Для очень высоких проектов башенный кран также может быть привязан к конструкции. Как правило, врезки устанавливаются по мере увеличения высоты конструкции, а затем следует подъем для увеличения общей высоты башенного крана.
Процесс разборки башенного крана практически идентичен процессу сборки, но в в обратном порядке.
Типы башенных крановСуществует столько типов башенных кранов, сколько необходимо для подъема. Вот краткое изложение наиболее распространенных типов башенных кранов, используемых на строительных площадках.
Башенный кран-молот Кран-молот оснащен фиксированной горизонтальной стрелой и тележкой, которая перемещается по длине стрелы для позиционирования крюка. верхняя сборка, в то время как другие используют дизайн «плоской вершины» без вершины башни или подвесных линий. Башенные краны с плоской крышей особенно полезны в ситуациях, когда несколько кранов перемещаются по одному и тому же воздушному пространству.
Кран этого типа, часто называемый стреловым краном, использует стрелу, которая вращается вверх и вниз с крюком, закрепленным на конце стрелы. Крюк устанавливается путем подъема или опускания стрелы. Этот тип крана особенно полезен на тесных рабочих площадках.
То есть башенный кран должен иметь возможность свободно раскачиваться, когда он не используется (флюгер). Таким образом, крану-молоту требуется свободный путь вокруг него, равный полной длине стрелы. Например, если вам нужен башенный кран с вылетом 200 футов, но в 100 футах от башенного крана находится высотное здание высотой 500 футов, вы не можете использовать головку молота для этого приложения.
У стрелового крана с маховой стрелой стрела устанавливается под более высоким углом, когда она не используется, что обычно уменьшает радиус, необходимый для флюгера, до менее чем половины максимально возможного вылета.
Самомонтирующийся кран Это небольшой башенный кран, который можно установить на месте без необходимости использования вспомогательного крана.
Как правило, этот тип крана выдвигает мачту, а затем разворачивает стрелу с помощью гидравлических цилиндров, постоянно закрепленных на кране. Эти краны не могут быть привязаны к конструкции и имеют ограниченную высоту крюка, но подходят для небольших или более коротких проектов, где фиксированные затраты на сборку более традиционной «башни» являются непомерно высокими.
Большинство кранов оснащены кабиной, в которой оператор может сидеть. Только опытный и квалифицированный оператор может выполнить работу безопасно и предотвратить ненужные несчастные случаи. Помимо уполномоченного водителя, на каждой строительной площадке есть бригада крановщика. Каждый член берет на себя разную ответственность. Это помогает предотвратить мелкие инциденты при выполнении маневров подъема.
Координатор крана или начальник подъемника отвечает за планирование подъема. Также есть сигнальный человек, который становится второй парой глаз, чтобы свести к минимуму слепые зоны оператора.
Этот человек будет доступен для связи с оператором крана в любое время.
Каждый день оператор крана несет ответственность за выполнение предпусковых проверок, чтобы обеспечить оптимальную работу крана. Некоторыми оцениваемыми жизненно важными компонентами являются двигатели, тросы, предохранительные устройства, системы управления и крюк. Если все в порядке, оператор может продолжать выполнять свои обязанности, как и планировалось изначально. В противном случае необходимы немедленные работы по техническому обслуживанию.
Правильный выбор башенного кранаКаждый строительный проект требует различных инструментов и материалов. При выборе наиболее подходящего башенного крана для проекта всегда необходимо учитывать следующие факторы:
Требуемая мощность Для чего вам нужен кран? Если вы не планируете регулярно поднимать тяжелые материалы или оборудование, вам подойдет легкий башенный кран. Если нужно сделать только несколько тяжелых отмычек, может быть более рентабельным использовать мобильный кран для этих отмычек и выбрать размер башенного крана, более подходящий для остальной части работы.
Одной из привлекательных особенностей башенного крана является то, что он занимает относительно мало места на земле. Однако для сборки и демонтажа башенного крана требуется значительное пространство и вспомогательное оборудование на земле. Крайне важно оценить не только оптимальное расположение крана для проекта, но и то, как он будет собираться и разбираться с этого места.
МестоположениеПомните, что большинство башенных кранов являются статичными, а это означает, что вы не сможете перемещать их по мере необходимости после установки. Планируйте заранее, чтобы ваш кран мог добраться туда, куда вам нужно, или подумайте о том, чтобы дополнить башенный кран мобильным краном (кранами).
Грузоподъемность Очевидно, что при выборе крана необходимо свериться с таблицами грузоподъемности, чтобы убедиться, что кран может поднимать требуемые грузы с заданным радиусом.
Определение как самого тяжелого подъема, так и самого длинного вылета необходимо, чтобы кран мог выполнять работу. Если требуется только ограниченное количество тяжелых грузов, может быть более рентабельным рассмотреть возможность использования меньшего башенного крана, поддерживаемого мобильными кранами, если это необходимо для этих нескольких более тяжелых предметов.
Процесс аренды, транспортировки и сборки башенного крана требует времени, усилий и денег. Это достаточно веская причина, чтобы всегда перепроверять таблицу грузоподъемности, чтобы убедиться, что выбранная вами модель соответствует вашим конкретным потребностям подъема.
Лучшие проекты для использования башенных крановАренда башенных кранов — это более доступный способ решения задач по подъему груза на любом строительном объекте. Если вы все еще не уверены, для чего можно использовать эти мощные инструменты, вот пара идей:
- Hospitals and Educational Facilities
- Multi-Family Housing
- Water Treatment Facilities
- Parking Garages
- Mid/High Rise Construction
- Industrial Projects
Tower cranes have certainly come прошли долгий путь с тех пор, как они впервые появились в Европе.



Добавить комментарий