Площадка для выкатки трансформатора: Площадка под выкатку трансформатора для блок-контейнера
ПУЭ 7. Установка силовых трансформаторов и реакторов | Библиотека
- 13 декабря 2006 г. в 18:44
- 2999513
Поделиться
Пожаловаться
Раздел 4. Распределительные устройства и подстанции
Глава 4.2. Распределительные устройства и подстанции напряжением выше 1 кВ
Установка силовых трансформаторов и реакторов
4.2.203. Требования, приведенные в 4.2.204-4.2.236, распространяются на стационарную установку в помещениях и на открытом воздухе силовых трансформаторов (автотрансформаторов), регулировочных трансформаторов и маслонаполненных реакторов с высшим напряжением 3 кВ и выше и не распространяются на электроустановки специального назначения.
Трансформаторы, автотрансформаторы и реакторы, указанные в настоящем параграфе, поименованы в 4.2.204-4.2.236 термином «трансформаторы».
Установка вспомогательного оборудования трансформаторов (электродвигателей системы охлаждения, контрольно-измерительной аппаратуры, устройств управления) должна отвечать требованиям соответствующих глав настоящих Правил.
Требования 4.2.212, 4.2.217, 4.2.218 не относятся к установке трансформаторов, входящих в КТП с высшим напряжением до 35 кВ.
4.2.204. В регионах с холодным климатом, с повышенной сейсмичностью должны применяться трансформаторы соответствующего исполнения.
4.2.205. Установка трансформаторов должна обеспечивать удобные и безопасные условия его осмотра без снятия напряжения.
4.2.206. Фундаменты трансформаторов напряжением 35-500 кВ должны предусматривать их установку непосредственно на фундамент без кареток (катков) и рельс.
Трансформаторы на подстанциях, имеющих стационарные устройства для ремонта трансформаторов (башни) и рельсовые пути перекатки, а также на подстанциях с размещением трансформаторов в закрытых помещениях следует устанавливать на каретках (катках).
Сейсмостойкие трансформаторы устанавливаются непосредственно на фундамент с креплением их к закладным элементам фундамента для предотвращения их смещений в горизонтальном и вертикальном направлениях.![]()
На фундаментах трансформаторов должны быть предусмотрены места для установки домкратов.
4.2.207. Уклон масляного трансформатора, необходимый для обеспечения поступления газа к газовому реле, должен создаваться путем установки подкладок.
4.2.208. При установке расширителя на отдельной конструкции она должна располагаться таким образом, чтобы не препятствовать выкатке трансформатора с фундамента.
В этом случае газовое реле должно располагаться вблизи трансформатора в пределах удобного и безопасного обслуживания со стационарной лестницы. Для установки расширителя можно использовать портал ячейки трансформатора.
4.2.209. Трансформаторы необходимо устанавливать так, чтобы отверстие защитного устройства выброса масла не было направлено на близко установленное оборудование. Для защиты оборудования допускается установка заградительного щита между трансформатором и оборудованием.
4.2.210. Вдоль путей перекатки, а также у фундаментов трансформаторов массой более 20 т должны быть предусмотрены анкеры, позволяющие закреплять за них лебедки, направляющие блоки, полиспасты, используемые при перекатке трансформаторов в обоих направлениях.
4.2.211. Расстояния в свету между открыто установленными трансформаторами определяются технологическими требованиями и должны быть не менее 1,25 м.
4.2.212. Разделительные перегородки между открыто установленными трансформаторами напряжением 110 кВ и выше единичной мощностью 63 МВ·А и более, должны предусматриваться:
- при расстояниях менее 15 м между трансформаторами (реакторами), а также между ними и трансформаторами любой мощности, включая регулировочные и собственных нужд;
- при расстояниях менее 25 м между трансформаторами, установленными вдоль наружных стен зданий электростанции на расстоянии от стен менее 40 м.
Разделительные перегородки должны иметь предел огнестойкости не менее 1,5 ч, ширину — не менее ширины маслоприемника и высоту — не менее высоты вводов высшего напряжения более высокого трансформатора. Перегородки должны устанавливаться за пределами маслоприемника.
Расстояние в свету между трансформатором и перегородкой должно быть не менее 1,5 м.
Указанные расстояния принимаются до наиболее выступающих частей трансформаторов.
Если трансформаторы собственных нужд или регулировочные установлены с силовым трансформатором, оборудованным автоматическим стационарным устройством пожаротушения, и присоединены в зоне действия защиты от внутренних повреждений силового трансформатора, то допускается вместо разделительной перегородки выполнять автоматическую стационарную установку пожаротушения трансформатора собственных нужд или регулировочного, объединенную с установкой пожаротушения силового трансформатора; при этом допускается сооружение общего маслоприемника.
4.2.213. Регулировочные трансформаторы должны устанавливаться в непосредственной близости от регулируемых автотрансформаторов, за исключением случая, когда между автотрансформатором и регулировочным трансформатором предусматривается установка токоограничивающего реактора.
4.
2.214. Автоматическими установками пожаротушения оснащаются:
- трансформаторы напряжением 500-750 кВ, независимо от мощности, а напряжением 220-330 кВ мощностью 250 МВ•А и более;
- трансформаторы напряжением 110 кВ и выше мощностью 63 МВ•А и более, устанавливаемые в камерах подстанций и у зданий ГЭС;
- трансформаторы напряжением 110 кВ и выше любой мощности, устанавливаемые в подземном здании ГЭС и ГАЭС.
4.2.215. Пуск установки пожаротушения должен осуществляться автоматически, вручную и дистанционно со щита управления. Устройство ручного пуска должно располагаться вблизи установки в безопасном при пожаре месте.
Включение установки пожаротушения группы однофазных трансформаторов должно производиться только на поврежденные фазы.
4.2.216. Каждый масляный трансформатор, размещаемый внутри помещений следует устанавливать в отдельной камере (исключение 4.2.98), расположенной на первом этаже. Допускается установка масляных трансформаторов на втором этаже, а также ниже уровня пола первого этажа на 1 м в незатопляемых зонах при условии обеспечения возможности транспортирования трансформаторов наружу и удаления масла в аварийных случаях в соответствии с требованиями, приведенными в 4.
2.103, как для трансформаторов с объемом масла более 600 кг.
При необходимости установки трансформаторов внутри помещений выше второго этажа или ниже пола первого этажа более чем на 1 м, они должны быть с негорючим экологически чистым диэлектриком или сухими в зависимости от условий окружающей среды и технологии производства. При размещении трансформаторов внутри помещений следует руководствоваться также 4.2.85.
Допускается установка в одной общей камере двух масляных трансформаторов с объемом масла до 3 т каждый, имеющих общее назначение, управление, защиту и рассматриваемых как один агрегат.
Сухие трансформаторы и имеющие негорючее заполнение устанавливаются в соответствии с 4.2.118.
4.2.217. Для трансформаторов, устанавливаемых внутри помещений, расстояния в свету от наиболее выступающих частей трансформаторов, расположенных на высоте 1,9 м и менее от пола, должны быть:
до задней и боковых стен не менее 0,3 м — для трансформаторов мощностью до 0,63 MB•А и 0,6 м — для трансформаторов большей мощности;
со стороны входа до полотна двери или выступающих частей стены не менее: 0,6 м — для трансформаторов мощностью до 0,63 МВ•А; 0,8 м — для трансформаторов до 1,6 МВ•А и 1 м — для трансформаторов мощностью более 1,6 МВ•А.
4.2.218. Пол камер масляных трансформаторов должен иметь 2%-ный уклон в сторону маслоприемника.
4.2.219. В камерах трансформаторов могут устанавливаться относящиеся к ним разъединители, предохранители и выключатели нагрузки, вентильные разрядники, ОПН, заземляющие дугогасящие реакторы, а также оборудование системы охлаждения.
4.2.220. Каждая камера масляных трансформаторов должна иметь отдельный выход наружу или в смежное помещение категорий Г или Д.
4.2.221. Расстояние по горизонтали от проема ворот трансформаторной камеры встроенной или пристроенной ПС до проема ближайшего окна или двери помещения должно быть не менее 1 м.
Выкатка трансформаторов мощностью 0,25 МВ•А и более из камер во внутренние проезды шириной менее 5 м между зданиями не допускается. Это требование не распространяется на камеры, выходящие в проходы и проезды внутри производственных помещений.
4.2.222. Вентиляционная система камер трансформаторов должна обеспечивать отвод выделяемого ими тепла (4.
2.104) и не должна быть связана с другими вентиляционными системами.
Стенки вентиляционных каналов и шахт должны быть выполнены из материалов с пределом огнестойкости не менее 45 мин.
Вентиляционные шахты и проемы должны быть расположены таким образом, чтобы в случае образования или попадания в них влаги она не могла стекать на трансформаторы, либо должны быть применены меры для защиты трансформатора от попадания влаги из шахты.
Вентиляционные проемы должны быть закрыты сетками с размером ячейки не более 1х1 см и защищены от попадания через них дождя и снега.
4.2.223. Вытяжные шахты камер масляных трансформаторов, пристроенных к зданиям, имеющих кровлю из горючего материала, должны быть отнесены от стен здания не менее чем на 1,5 м или же конструкции кровли из горючего материала должны быть защищены парапетом из негорючего материала высотой не менее 0,6 м. Вывод шахт выше кровли здания в этом случае необязателен.
Отверстия вытяжных шахт не должны располагаться против оконных проемов зданий.
При устройстве выходных вентиляционных отверстий непосредственно в стене камеры они не должны располагаться под выступающими элементами кровли из горючего материала или под проемами в стене здания, к которому камера примыкает.
Если над дверью или выходным вентиляционным отверстием камеры трансформатора имеется окно, то под ним следует устраивать козырек из негорючего материала с вылетом не менее 0,7 м. Длина козырька должна быть более ширины окна не менее чем на 0,8 м в каждую сторону.
4.2.224. Трансформаторы с принудительной системой охлаждения должны быть снабжены устройствами для автоматического пуска и останова системы охлаждения.
Автоматический пуск должен осуществляться в зависимости от температуры верхних слоев масла и, независимо от этого, по току нагрузки трансформатора.
4.2.225. При применении вынесенных охладительных устройств они должны размещаться так, чтобы не препятствовать выкатке трансформатора с фундамента и допускать проведение их обслуживания при работающем трансформаторе.
Поток воздуха от вентиляторов дутья не должен быть направлен на бак трансформатора.
4.2.226. Расположение задвижек охладительных устройств должно обеспечивать удобный доступ к ним, возможность отсоединения трансформатора от системы охлаждения или отдельного охладителя от системы и выкатки трансформатора без слива масла из охладителей.
4.2.227. Охладительные колонки, адсорберы и другое оборудование, устанавливаемое в системе охлаждения Ц (OFWF), должны располагаться в помещении, температура в котором не снижается ниже +5 °С.
При этом должна быть обеспечена возможность замены адсорбента на месте.
4.2.228. Внешние маслопроводы систем охлаждения ДЦ (OFAF) и Ц (OFWF) должны выполняться из нержавеющей стали или материалов, устойчивых против коррозии.
Расположение маслопроводов около трансформатора не должно затруднять обслуживание трансформатора и охладителей и должно обеспечивать минимальные трудозатраты при выкатке трансформатора. При необходимости должны быть предусмотрены площадки и лестницы, обеспечивающие удобный доступ к задвижкам и вентиляторам дутья.
4.2.229. При вынесенной системе охлаждения, состоящей из отдельных охладителей, все размещаемые в один ряд одиночные или сдвоенные охладители должны устанавливаться на общий фундамент.
Групповые охладительные установки могут размещаться как непосредственно на фундаменте, так и на рельсах, уложенных на фундамент, если предусматривается выкатка этих установок на своих катках.
4.2.230. Шкафы управления электродвигателями системы охлаждения ДЦ (OFAF), НДЦ (ODAF) и Ц (OFWF) должны устанавливаться за пределами маслоприемника. Допускается навешивание шкафа управления системой охлаждения Д (ONAF) на бак трансформатора, если шкаф рассчитан на работу в условиях вибрации, создаваемой трансформатором.
4.2.231. Трансформаторы с принудительной системой охлаждения должны быть снабжены сигнализацией о прекращении циркуляции масла, охлаждающей воды или останове вентиляторов дутья, а также об автоматическом включении или отключении резервного охладителя или резервного источника питания.![]()
4.2.232. Для шкафов приводов устройств регулирования напряжения под нагрузкой и шкафов автоматического управления системой охлаждения трансформаторов должен быть предусмотрен электрический подогрев с автоматическим управлением.
4.2.233. Планово-предупредительный ремонт трансформаторов на подстанциях следует предусматривать на месте их установки с помощью автокранов или (и) инвентарных устройств. При этом рядом с каждым трансформатором должна быть предусмотрена площадка, рассчитанная на размещение элементов, снятых с ремонтируемого трансформатора, такелажной оснастки и оборудования, необходимого для ремонтных работ.
В стесненных условиях ПС допускается предусматривать одну ремонтную площадку с сооружением к ней путей перекатки.
На ПС, расположенных в удаленных и труднодоступных районах, следует предусматривать совмещенные порталы.
На ПС напряжением 500-750 кВ, расположенных в районах со слаборазвитыми и ненадежными транспортными связями, а также на ОРУ электростанций при установке на них трансформаторов, если трансформаторы невозможно доставить на монтажную площадку гидроэлектростанций и ремонтную площадку машинного зала электростанции, для проведения планово-предупредительных ремонтных работ допускается предусматривать стационарные устройства-башни, оборудованные мостовыми кранами, с мастерской или аппаратной маслохозяйства с коллектором для передвижных установок.
Необходимость сооружения башни определяется заданием на проектирование.
4.2.234. При открытой установке трансформаторов вдоль машинного зала электростанции должна быть обеспечена возможность перекатки трансформатора к месту ремонта без разборки трансформатора, снятия вводов и разборки поддерживающих конструкций токопроводов, порталов, шинных мостов и т.п.
4.2.235. Грузоподъемность крана в трансформаторной башне должна быть рассчитана на массу съемной части бака трансформатора.
4.2.236. Продольные пути перекатки трансформаторов на подстанциях должны предусматриваться:
- при наличии подъездной железной дороги;
- при наличии башни для ремонта трансформаторов;
- при аварийном вводе в работу резервной фазы автотрансформатора методом перекатки, если это обосновано в сравнении с другими способами.
Персональная лента новостей Дзен от Elec.ru
Актуальные новости, обзоры и публикации портала в удобном формате.
Подписаться
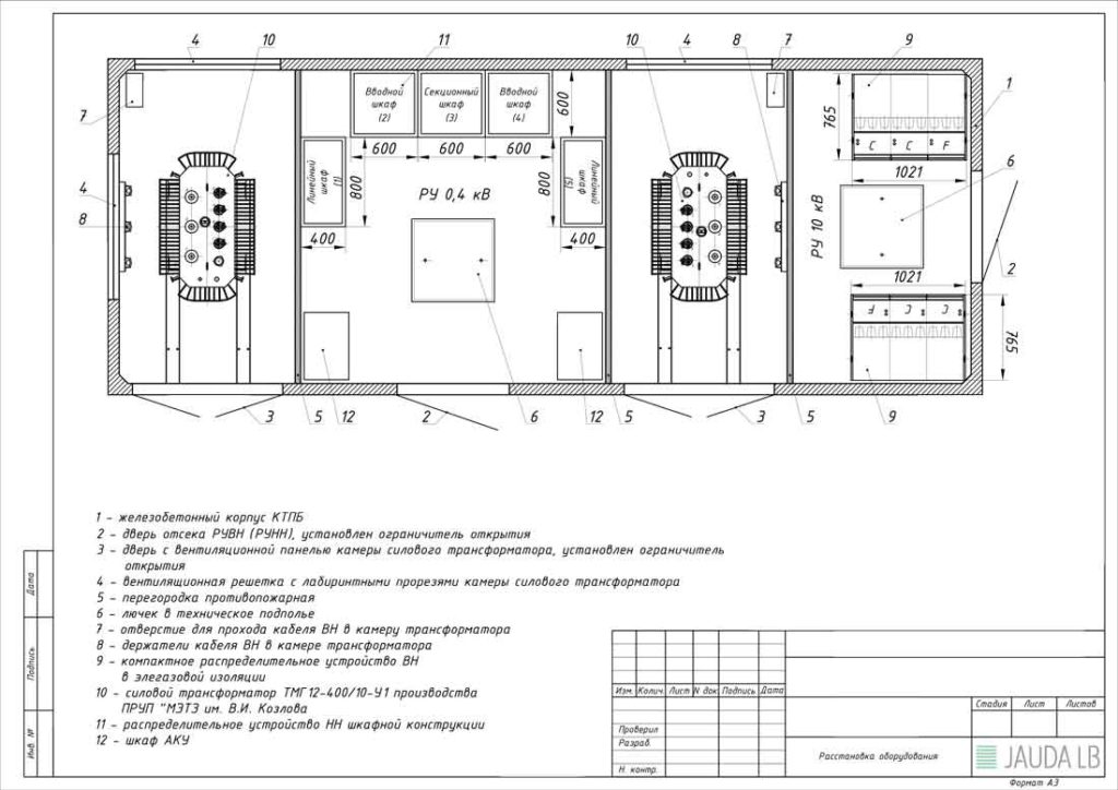
Модуль электротехнический многопрофильный | А-Энерго
Главная > Электротехнические помещения > Модуль электротехнический многопрофильный
Модуль электротехнический многопрофильный с сокращенным объемом строительно-монтажных работ предназначен для внутреннего размещения электротехнического оборудования, обслуживающего персонала и их защиты от воздействия внешней среды.
Блок-модуль выполняется в климатическом исполнении УХЛ 1 по ГОСТ 15150 69.
Климатические факторы | |
Температура окружающего воздуха, °С | -60…+40 |
Высота над уровнем моря, м, не более | 1000 |
Среднегодовое значение относительной влажности воздуха | 75% при плюс 15°С; |
В I-IV районах по скоростному напору ветра согласно СНиП 2. | |
Встроенная в блочно-модульное здание КТП во всём диапазоне сейсмических воздействий землетрясения до 8 баллов по шкале MSK 64 включительно на уровне до 25 м (9 баллов на отметке 0 м) по ГОСТ 17516.1-90; | |
Здание предназначено для эксплуатации в не агрессивных, слабоагрессивных средах | |
Модульные здания по функциональному назначению применяются в соответствии с ГОСТ 25957-83 как производственные категории Д по НПБ 105-95.
Модульные здания выполняются II степени огнестойкости в соответствии с СНиП21-01-97 с ограждающими конструкциями из панелей с негорючим базальтовым минераловатным утеплителем и огнезащитным покрытием несущих частей здания.
Блок-модуль нельзя эксплуатировать:
- во взрыво- и пожароопасной среде, а также в среде, содержащей едкие пары и газы, разрушающие металл и изоляцию, за исключением случаев применения приточной вентиляции модульного здания;
- на передвижных шахтных и других установках специального назначения.

Модуль электротехнический многопрофильный с сокращенным объемом строительно-монтажных работ служит защитной оболочкой для установленных внутри него составных элементов, внутри которого поддерживаются условия, соответствующие условиям эксплуатации КТП.
Модуль электротехнический многопрофильный для размещения электрооборудования.
Модуль электротехнический многопрофильный, предназначенные для размещения электрооборудования, собираются из модулей размерами:
- 9000×3000×3290(h)мм,
- 10000×3000×3290(h)мм,
- 12000×3000×3290(h)мм.
Блок-модуль представляет собой сварную металлическую конструкцию, обшитую с наружной стороны стеновыми панелями.
Технические характеристики:
- Максимальный вес блоков длиной 9, 10, 12 м с оборудованием – 15000 кг
- Масса блока без оборудования, не более:
- блоков длиной 10 м – 8 т;
- блоков длиной 12 м – 10 т.
- Максимальный вес помещения частотного преобразователя (ПЧП) – 3000 кг.
- Габаритные размеры блочно-модульных зданий для размещения электрооборудования:
- 9000×3000×3290(h) мм;
- 10000×3000×3290(h) мм;
- 12000×3000×3290(h) мм.
- Габаритные размеры блок-модуля для размещения частотного преобразователя:
- 3320×2070×2690(h) мм;
- 3320×2460×2690(h) мм;
- 5225×2460×2690(h) мм.
- Габариты площадок для выкатки трансформаторов:
- 3000×1700 мм;
- 4000×2000 мм.
- Нагрузка на фундамент от площадки для выкатки трансформатора составляет:
- q=1900 кг/пм – площадка размером 3000х1700 мм;
- q=1500 кг/пм – площадка размером 4000х2000.
- Вертикальная максимальная нагрузка от блока на фундамент – равномерно распределённая и составляет не более q=780 кг/пм.
Развертывание — Transformers Wiki
Название или термин «Развертывание» относится к более чем одному персонажу или идее. Список других значений см. В разделе «Развертывание» (значения). |
Катиться, плавать, дрейфовать, падать… что угодно.
« Развернуть » — это обычная команда среди трансформеров (в первую очередь автоботов), по сути означающая выдвинуться, развернуться или иным образом приступить к миссии. Его буквальное значение — начать , катя в режиме наземного транспортного средства с колесами, — похоже, со временем размылось до такой степени, что Трансформеры, которые даже не 0005 имеют транспортных альтернативных форм (и должны бежать туда, куда они направляются) по-прежнему отдают/получают приказ.
| ” | Автоботы, трансформируйтесь и выкатывайтесь! | ” |
— Оптимус Прайм пересекает мультивселенную, слишком много раз, чтобы сосчитать | ||
Содержимое
|
Художественная литература
Мультипликационная преемственность поколения 1
Трансформеры мультяшный Фраза в ее самой знаковой форме была произнесена Оптимусом Праймом; обычно это означало начало миссии, поскольку группа трансформировалась и развертывалась, чтобы противостоять последней схеме десептиконов.
После того, как Хот Род открыл Матрицу и стал Родимусом Праймом, его первым действием в качестве лидера автоботов был приказ автоботам «трансформироваться и выкатиться»… через космос (и оставшийся неповрежденный глаз Юникрона)! Трансформеры: Фильм
Это было настолько известное командование, что через несколько месяцев после смерти Оптимуса Прайма Пайпс собрал свои войска для защиты штаб-квартиры автоботов таким образом: «Как говаривал Оптимус Прайм, трансформируйся и разворачивайся!» Пять ликов тьмы, часть 5
Вселенная КрыльевВселенная Крыльев основана на мультфильме «Поколение 1», но отличается от него в косметических аспектах и точках преемственности.
Еще до инициативы Прайм по крайней мере часть этой фразы уже была достаточно популярна, чтобы Громовая Битва отдала приказ «Автоботы, выдвигаться» своему отряду при высадке на планету для миссии. Крылья чести
Марвел
Трансформеры комиксы Может быть, это потому, что я не умею летать и мне приходится кататься повсюду.
Эта фраза в меньшей степени ассоциировалась с Оптимусом Праймом, хотя он использовал ее, чтобы начать несколько миссий в течение нескольких месяцев после того, как он вернулся из плена Шоквейва. На самом деле, первое известное произнесение этой фразы принадлежит Уилджеку, когда он и Джаз покинули Ковчег с миссией. DIS-интегральные схемы!
Вперед, вперед! Въезжай на них, считай их!
Позже он будет использоваться для управления всевозможными трансформерами, например, для запуска 9.0006 к месту назначения, Братья по доспехам!! или , выпрыгивающий из звездолета в космос . Космические путешественники!
Когда Прайм впервые вернулся к командованию автоботами на миссии, он использовал эту фразу так беспричинно, что это даже не было командой идти куда-нибудь ; по сути, это просто означало «развернись и сражайся». Поскольку Прайм в то время был не более чем компьютерной программой, может быть, мы можем дать ему небольшую слабину.
Претендент на престол!
Подобно запоздалому появлению кубов энергона, частое использование этой фразы, даже когда она не имеет смысла, может быть точкой отсчета комиксов, сходящихся к более известному мультфильму G1.
Beast WarsНенадолго удерживая искру Оптимуса Прайма, лидер Максималов Оптимус Праймал сказал Максималам, что «пришло время трансформироваться и разворачиваться!» Оптимальная ситуация
Хотя это могло бы показаться логичным, никто еще не когда-либо сказал Retrax “развернуть”. Не так уж много других воинов-зверей так хорошо оснащены для этого.
Beast Wars: UprisingКогда разношерстная команда неудачников, называющих себя Экс-Ботами, намеревалась остановить Восьмерку Антарес, Овершот сначала сказал им «трансформироваться и выкатиться», но понял, что большинство из них неспособны катания из-за их звериных режимов, и выбрали гораздо менее броское «трансформироваться и пробиться туда». Культурное присвоение
Серия фильмов с живыми боевиками
Оптимус Прайм дважды использовал версию крылатой фразы, один раз в обсерватории, сокращенную до «Автоботы, выкатывайтесь!», а ранее, когда трансформировался для побега из седьмого сектора, просто «Выкатывайтесь!» .
«Преобразование» в любом случае должно было показаться слишком очевидным, чтобы упоминать его. Трансформеры Позже он объявит «Давай покатаемся», когда он взлетел, недавно модернизированный, чтобы победить Падших. Казалось, он не говорил этого никому конкретно, но Леннокс, очевидно, воспринял это буквально и заставил всех бежать к надвигающейся битве. Месть падшего Оптимус позже закричал: «Выкатывайтесь!» Перекрестию, Дрифту и диноботам после успешного доказательства своей силы Гримлоку. Затем они отправились в Гонконг, чтобы остановить Гальватрона и его армию. Возраст вымирания
2005 Преемственность IDW
Еще менее странно, чем когда это сказал Зарак.
После миссии в Ньоне по задержанию Свиндла Орион Мирный приказал своему отряду автоботов выкатиться… обратно на базу. Закон и беспорядок Вскоре после этого он приказал им развернуться и отправиться на поиски Саундвейва. Охота на Саундвейв Вернувшись в Ньон, он приказал им развернуться и устроить засаду на один из Омега-разрушителей Зета Прайм.
Удалять
Гораздо позже на Земле Оптимус Прайм заставил Уилджека удерживать форт на своей базе, пока он приказал остальным автоботам выкатиться… в Латверию. Человек и машина, часть первая
Гораздо позже, после обращения Мегатрона в автоботов и двухлетней «реабилитации» на борту Lost Light , Родимус позволил ему отдать приказ после успешной миссии против ржавых гигантов на Милиариуме. В то время они не знали, что этот примирительный жест окажется последней каплей для недовольных автоботов под их командованием, подтолкнув их к открытому мятежу и бросив Мегатрона вместе с Командой Родимуса в Некромире. Как ярки их бренные дела
В поисках пропавшего Джаза Айлерон приказала своей команде выдвигаться. Слайду, который недавно потерял способность трансформироваться, это не понравилось. Безмерный, часть 1
Капитан ремонтной бригады Оптимус Прайм, когда-то обосновавшийся/застрявший на Земле, обычно использовал команду «Трансформируйтесь и выкатывайтесь!» чтобы его отряд развернулся на задании.
Преобразование и развертывание Это стало для него такой крылатой фразой, что его обожающие юные поклонники среди населения Детройта попросили его произнести эту фразу для них. Звук и ярость Ультра Магнус позже сказал Джазу «Трансформироваться и выкатиться», когда он решил, что им двоим следует разобраться с убегающим поездом. Миссия выполнена
Когда автоботы временно превратились в людей, Оптимус в какой-то момент рефлекторно приказал своей команде «трансформироваться». Когда он понял, что это больше не работает, он перешел к «выкатыванию». Поняв, что это тоже неприменимо, он, наконец, неуверенно остановился на «давай просто пойдем». Бедный парень. Человеческая ошибка, часть I
Во время обучения новобранцев Jetfire и Jetstorm Сентинел Прайм приказал им «трансформироваться и развернуться». Когда близнецы указали, что в их новых реактивных режимах больше нет колес для движения, Страж изменил свою команду на «Трансформировать и fly out”, что дуэт быстро и сделал.
Первый (и второй) в полете
У десептиконов есть своя версия команды: «Трансформируйся и восстань!» Восхождение Мегатрона – Часть 2. У большинства анимированных десептиконов (Мегатрон, Блицвинг, Лугнут и Старскрим) есть режимы летательных аппаратов, которые буквально поднимаются в воздух, одновременно обслуживая предполагаемый праведный бунт десептиконов, сплачиваясь против своих автоботов-«угнетателей».
Разбитое стеклоВ одном из немногих моментов, которые не противоречат друг другу, автоботы по-прежнему предпочитают эту фразу.
Оптимус Прайм приказал Искателям трансформироваться и развернуться, чтобы защитить платформу Ковчег от рейда десептиконов. Разбитое стекло Намного позже, в зловещей вариации, Родимус приказал автоботам «трансформировать и перевернуть на » некоторых людей, захватив военную базу на Земле. Глаз в небе
Один из менее частых случаев использования этой фразы десептиконами возник, когда, сбегая с Альфа Триона, Лэндквейк приказал Отрыву и Топспину трансформироваться и развернуться.
(Несмотря на то, что Landquake был единственным из трех, кто сделал бросок, а Breakaway не мог трансформироваться из-за того, что нес Skyfall…) Воссоединение: Часть 2
Выровненная семья преемственности
В Выровненной преемственности у отдельных лидеров автоботов, по-видимому, есть свои собственные уникальные «броские фразы», причем «Автоботы, разворачивайтесь» – фраза, используемая Оптимусом Праймом.
ПраймБольшую часть времени Оптимус Прайм просто приказывает автоботам развернуться, но в двух очень редких случаях он использовал полную фразу «Трансформируйте и разверните». Наследие минус один Мегатрон позже позаимствовал крылатую фразу своего аналога из Animated , приказав своей армаде мобилизоваться и атаковать ею базу автоботов. Темный час
Боты-спасатели Вскоре после того, как Спасательный отряд Сигма-17 впервые приземлился на Землю и встретился с Оптимусом Праймом, Хитвейв спросил, когда они могут «выкатиться» с Оптимусом в бой, что намекало на знакомство с общая фраза.
У роботов-спасателей также был свой боевой клич: «Боты-спасатели, катитесь на помощь!». Семья героев
Когда Оптимус Прайм и Бамблби воссоединились с ботами, когда они бежали из Марокко, Оптимус использовал вариацию своей собственной крылатой фразы: «Боты-спасатели, выдвигайтесь». Бот в будущее
Замаскированные роботыБамблби изо всех сил пытался придумать собственную крылатую фразу, возглавляя земных автоботов, обычно пробуя кричать перед тем, как его команда отправится на каждую миссию, и редко получая положительный ответ. Пилот (Часть 1) Чтобы уловить фразуБолее или менее в каждом эпизоде 1 сезона Он , наконец, придумал одну фразу, на которую остальная часть его команды хорошо отреагировала в форме: «Увеличь обороты и выкатись!» после поражения Мегатронуса. Поля сражений, часть 2
Трилогия Prime Wars мультфильмы Мегатрон подшутил над Оптимусом, выдав себя за него, выкрикивая: «Трансформируйся и катись!» как они покинули старую арену.
Оптимусу было не до смеха, а Виндблейд с трудом сдерживала смех. Незабытый
Оптимус Прайм использовал эту фразу как боевой клич, например, когда автоботы столкнулись с приближающейся армадой десептиконов. Извержение
Искра Земли cartoonКогда Оптимус Прайм отдавал приказ «Автоботы… развернуться», Мегатрон, союзник автоботов, шутил со своим другом-человеком Дотом Мальто. Он никогда не мог сказать, включил ли Прайм и его в командный вызов. Тайное наследие, часть 2
Терран, Хромой, присвоил крылатую фразу Прайма, покидая город Филадельфию, приказав: «Мальтоботы… выдвигайтесь!» своим братьям и сестрам. Дом, часть 2.
Примечания
Иностранные фразы
- Японский: Shutsugeki (出 撃, «Уходи»)
- Венгерский: Autobotok, (Átalakulni/Alakváltás/Átalakulás és) Indulás! («Автоботы, трансформирующиеся / меняющие форму / трансформирующиеся и улетающие»), Autobotok, (Alakváltás és) gurulás! («Автоботы, изменение формы и перекатывание», Cybertron второе дублирование), Alakot válts és nyomás («Трансформация» + синоним «indulás», RiD15 ), Nyomás! ( Трилогия WFC )
- Украинский: Трансформируемся, и вперед! (Трансформуймось, і вперед!, «Трансформируемся и вперед!»)
Развертывание — Transformers Wiki
Название или термин «Развертывание» относится к более чем одному персонажу или идее. Список других значений см. В разделе «Развертывание» (значения). |
Катиться, плавать, дрейфовать, падать… что угодно.
« Развернуть » — это обычная команда среди трансформеров (в первую очередь автоботов), по существу означающая выдвижение, развертывание или иное начало миссии. Его буквальное значение, чтобы начать , перекатывающий в режиме наземного транспортного средства с колесами, похоже, со временем разбавился до такой степени, что Трансформеры, у которых нет даже , имеют альтернативных транспортных форм (и им приходится бежать туда, куда они идут). ) еще отдать/получить заказ.
| ” | Автоботы, трансформируйтесь и выкатывайтесь! | ” |
— Оптимус Прайм пересекает мультивселенную, слишком много раз, чтобы сосчитать | ||
Содержимое
|
Художественная литература
Преемственность мультфильмов первого поколения
Трансформеры мультфильм Фраза в ее наиболее культовой форме была произнесена Оптимусом Праймом; обычно это означало начало миссии, поскольку группа трансформировалась и развертывалась, чтобы противостоять последней схеме десептиконов.
После того, как Хот Род открыл Матрицу и стал Родимусом Праймом, его первым действием в качестве лидера автоботов был приказ автоботам «трансформироваться и выкатиться»… через космос (и оставшийся неповрежденный глаз Юникрона)! Трансформеры: Фильм
Это было настолько известное командование, что через несколько месяцев после смерти Оптимуса Прайма Пайпс собрал свои войска для защиты Штаба Автоботов таким образом: «Как говаривал Оптимус Прайм, трансформируйся и разворачивайся!» Пять ликов тьмы, часть 5
Вселенная КрыльевВселенная Крыльев основана на мультфильме «Поколение 1», но отличается от него в косметических аспектах и точках преемственности.
Еще до инициативы Прайм по крайней мере часть этой фразы уже была достаточно популярна, чтобы Громовая Битва отдала приказ «Автоботы, выдвигаться» своему отряду при высадке на планету для миссии. Крылья чести
Марвел
Трансформеры комиксы Может быть, это потому, что я не умею летать и мне приходится кататься повсюду.
Эта фраза в меньшей степени ассоциировалась с Оптимусом Праймом, хотя он использовал ее, чтобы начать несколько миссий в течение нескольких месяцев после того, как он вернулся из плена Шоквейва. На самом деле, первое известное произнесение этой фразы принадлежит Уилджеку, когда он и Джаз покинули Ковчег с миссией. DIS-интегральные схемы!
Вперед, вперед! Въезжай на них, считай их!
Позже он будет использоваться для управления всеми видами трансформеров, например, , бегущим к месту назначения, Brothers in Armor!! или , выпрыгивающий из звездолета в космос . Космические путешественники!
Когда Прайм впервые вернулся к командованию автоботами на миссии, он использовал эту фразу так беспричинно, что это даже не было командой идти куда-нибудь ; по сути, это просто означало «развернись и сражайся». Поскольку Прайм в то время был не более чем компьютерной программой, может быть, мы можем дать ему небольшую слабину.
Претендент на престол!
Подобно запоздалому появлению кубов энергона, частое использование этой фразы, даже когда она не имеет смысла, может быть точкой отсчета комиксов, сходящихся к более известному мультфильму G1.
Beast WarsНенадолго удерживая искру Оптимуса Прайма, лидер Максималов Оптимус Праймал сказал Максималам, что «пора трансформироваться и развернуться!» Оптимальная ситуация
Хотя это могло бы показаться логичным, никто еще не когда-либо сказал Retrax “развернуть”. Не так уж много других воинов-зверей так хорошо оснащены для этого.
Beast Wars: UprisingКогда разношерстная команда неудачников, называющих себя Экс-Ботами, намеревалась остановить Восьмерку Антарес, Овершот сначала сказал им «трансформироваться и выкатиться», но понял, что большинство из них неспособны катания из-за их звериных режимов, и выбрали гораздо менее броское «трансформироваться и пробиться туда». Культурное присвоение
Сериал игровых фильмов
Оптимус Прайм дважды использовал версию крылатой фразы, один раз в обсерватории, сокращенную до «Автоботы, выкатывайтесь!», а ранее, когда трансформировался, чтобы сбежать из Сектора семь, просто «Выкатывайтесь!» .
«Преобразование» в любом случае должно было показаться слишком очевидным, чтобы упоминать его. Трансформеры Позже он объявит «Давай покатаемся», когда он взлетел, недавно модернизированный, чтобы победить Падших. Казалось, он не говорил этого никому конкретно, но Леннокс, очевидно, воспринял это буквально и заставил всех бежать к надвигающейся битве. Месть падшего Оптимус позже закричал: «Выкатывайтесь!» Перекрестию, Дрифту и диноботам после успешного доказательства своей силы Гримлоку. Затем они отправились в Гонконг, чтобы остановить Гальватрона и его армию. Возраст вымирания
2005 Преемственность IDW
Еще менее странно, чем когда это сказал Зарак.
После миссии в Ньоне по задержанию Свиндла Орион Мирный приказал своему отряду автоботов выкатиться… обратно на базу. Закон и беспорядок Вскоре после этого он приказал им развернуться и отправиться на поиски Саундвейва. Охота на Саундвейв Вернувшись в Ньон, он приказал им развернуться и устроить засаду на один из Омега-разрушителей Зета Прайм.
Удалять
Гораздо позже на Земле Оптимус Прайм заставил Уилджека удерживать форт на своей базе, пока он приказал остальным автоботам выкатиться… в Латверию. Человек и машина, часть первая
Гораздо позже, после обращения Мегатрона в автоботов и двухлетней «реабилитации» на борту Lost Light , Родимус позволил ему отдать приказ после успешной миссии против ржавых гигантов на Милиариуме. В то время они не знали, что этот примирительный жест окажется последней каплей для недовольных автоботов под их командованием, подтолкнув их к открытому мятежу и бросив Мегатрона вместе с Командой Родимуса в Некромире. Как ярки их бренные дела
В поисках пропавшего Джаза Айлерон приказала своей команде выдвигаться. Слайду, который недавно потерял способность трансформироваться, это не понравилось. Безмерный, часть 1
Капитан ремонтной бригады Оптимус Прайм, когда-то обосновавшийся/застрявший на Земле, обычно использовал команду «Трансформируйтесь и выкатывайтесь!» чтобы его отряд развернулся на задании.
Преобразование и развертывание Это стало для него такой крылатой фразой, что его обожающие юные поклонники среди населения Детройта попросили его произнести эту фразу для них. Звук и ярость Ультра Магнус позже сказал Джазу «Трансформироваться и выкатиться», когда он решил, что им двоим следует разобраться с убегающим поездом. Миссия выполнена
Когда автоботы временно превратились в людей, Оптимус в какой-то момент рефлекторно приказал своей команде «трансформироваться». Когда он понял, что это больше не работает, он перешел к «выкатыванию». Поняв, что это тоже неприменимо, он, наконец, неуверенно остановился на «давай просто пойдем». Бедный парень. Человеческая ошибка, часть I
Во время обучения новобранцев Jetfire и Jetstorm Сентинел Прайм приказал им «трансформироваться и развернуться». Когда близнецы указали, что в их новых реактивных режимах больше нет колес для движения, Страж изменил свою команду на «Трансформировать и fly out”, что дуэт быстро и сделал.
Первый (и второй) в полете
У десептиконов есть своя версия команды: «Трансформируйся и восстань!» Восхождение Мегатрона – Часть 2. У большинства анимированных десептиконов (Мегатрон, Блицвинг, Лугнут и Старскрим) есть режимы летательных аппаратов, которые буквально поднимаются в воздух, одновременно обслуживая предполагаемый праведный бунт десептиконов, сплачиваясь против своих автоботов-«угнетателей».
Разбитое стеклоВ одном из немногих моментов, которые не противоречат друг другу, автоботы по-прежнему предпочитают эту фразу.
Оптимус Прайм приказал Искателям трансформироваться и развернуться, чтобы защитить платформу Ковчег от рейда десептиконов. Разбитое стекло Намного позже, в зловещей вариации, Родимус приказал автоботам «трансформировать и перевернуть на » некоторых людей, захватив военную базу на Земле. Глаз в небе
Один из менее частых случаев использования этой фразы десептиконами возник, когда, сбегая с Альфа Триона, Лэндквейк приказал Отрыву и Топспину трансформироваться и развернуться.
(Несмотря на то, что Landquake был единственным из трех, кто сделал бросок, а Breakaway не мог трансформироваться из-за того, что нес Skyfall…) Воссоединение: Часть 2
Выровненная семья преемственности
В Выровненной преемственности у отдельных лидеров автоботов, по-видимому, есть свои собственные уникальные «броские фразы», причем «Автоботы, разворачивайтесь» – фраза, используемая Оптимусом Праймом.
ПраймБольшую часть времени Оптимус Прайм просто приказывает автоботам развернуться, но в двух очень редких случаях он использовал полную фразу «Трансформируйте и разверните». Наследие минус один Мегатрон позже позаимствовал крылатую фразу своего аналога из Animated , приказав своей армаде мобилизоваться и атаковать ею базу автоботов. Темный час
Боты-спасатели Вскоре после того, как Спасательный отряд Сигма-17 впервые приземлился на Землю и встретился с Оптимусом Праймом, Хитвейв спросил, когда они могут «выкатиться» с Оптимусом в бой, что намекало на знакомство с общая фраза.
У роботов-спасателей также был свой боевой клич: «Боты-спасатели, катитесь на помощь!». Семья героев
Когда Оптимус Прайм и Бамблби воссоединились с ботами, когда они бежали из Марокко, Оптимус использовал вариацию своей собственной крылатой фразы: «Боты-спасатели, выдвигайтесь». Бот в будущее
Замаскированные роботыБамблби изо всех сил пытался придумать собственную крылатую фразу, возглавляя земных автоботов, обычно пробуя кричать перед тем, как его команда отправится на каждую миссию, и редко получая положительный ответ. Пилот (Часть 1) Чтобы уловить фразуБолее или менее в каждом эпизоде 1 сезона Он , наконец, придумал одну фразу, на которую остальная часть его команды хорошо отреагировала в форме: «Увеличь обороты и выкатись!» после поражения Мегатронуса. Поля сражений, часть 2
Трилогия Prime Wars мультфильмы Мегатрон подшутил над Оптимусом, выдав себя за него, выкрикивая: «Трансформируйся и катись!» как они покинули старую арену.

01.07-85; к I-IV районам по снеговой нагрузке;
Список других значений см. В разделе «Развертывание» (значения).
1 Преемственность мультфильмов поколения 1
Список других значений см. В разделе «Развертывание» (значения).
1 Преемственность мультфильмов поколения 1
Добавить комментарий