Башенного крана схема: Устройство башенного крана, типы конструкций и схема
Устройство башенного крана, типы конструкций и схема
Опубликовано: 19.11.2013
17847
Краны башенного типа придумали больше ста лет назад. Их назначение – поднимать грузы на большую высоту. Понимать устройство башенного крана, типы конструкций и схему необходимо для правильной организации работ на строительной площадке.
За минувший век инженерная мысль продвинулась далеко вперед в развитии подъемной техники. Сегодня рынок предлагает широкий спектр этих сложных технических устройств, рассчитанных для различных видов работ. Если вам нужно арендовать автокран в Нижнем Новгороде, обращайтесь в компанию ООО КранСтрой.
Оглавление:
Особенности крана башенного типа
Универсальное высотное крановое оборудование рассчитано на грузы 5 – 10 тонн. С его помощью можно поднять к месту строительных работ нужный материал и оснастку. Но существует и мощная подъемная спецтехника, способная справиться с весом до 100 тонн. Без нее не обойтись, если нужно, к примеру, поднять наверх турбину.
Башенные краны перевозят в разобранном виде и собирают непосредственно на стройке. Сборка занимает четыре рабочих смены, для нее требуются автокран и 7-8 рабочих.
Есть у этих технических устройств и еще одна особенность: они способны сами себя строить. Когда высоты этого гиганта начинает не хватать, он сам поднимает наверх очередной пролет для своей башни, рабочие устанавливают его, и крановая конструкция как чулок наползает на новый пролет, поднимая стрелу выше.
Универсальное крановое оборудование башенного типа способно поднимать тяжести на высоту до двухсот метров. Но встречается техника, для которой и эта высота не предел. Без нее не обойтись при строительстве небоскребов.
Основные характеристики крана башенного типа:
- Высота подъема груза – от этой характеристики зависит высота здания, которое можно построить.
- Максимально допустимый вес груза – главный показатель мощности подъемного оборудования.

- Вылет стрелы – этот параметр определяет радиус действия крана и является важным показателем его эффективности.
- Скорость подъема груза.
- Скорость поворота стрелы.
- Скорость перемещения самой машины.
Эти характеристики влияют на производительность работ на стройплощадке.
Схема устройства башенного крана
Электросхема узлов башенного крана
Устройство башенного крана:
- Рама – основа, на которую устанавливается остальное оборудование. Расположена внизу всей конструкции.
- Ходовая тележка – с ее помощью машина передвигается. Тележка устанавливается под раму.
- Опорно-поворотное устройство – с помощью опорно-поворотного устройства кран может поворачиваться вокруг своей оси.
- Платформа – нужна для установки башни и противовеса.
- Башня – вертикальная часть конструкции, на которую установлены стреловая часть и кабина. Именно башня делает крановую технику механизмом, способным поднимать тяжести на большую высоту.

- Кабина – помещение в верхней части башни, где расположены органы управления и приборы.
- Стрела – основный горизонтальный элемент конструкции. На стреловой части устанавливается грузоподъемное устройство.
- Грузовая тележка – нужна для перемещения груза вдоль стреловой конструкции. Устанавливается только на стрелах балочного типа.
- Консоль – расположена с противоположной части стреловой конструкции, поэтому у консоли есть второе название – контрстрела. Нужна, чтобы создать рычаг, который уравновесит рабочий вес стреловой части.
- Оголовок – специальная секция, устанавливается на башню выше стреловых элементов. Через оголовок перекинуты тросы, которые поднимают и опускают стреловую конструкцию.
- Противовес – обычно представляет собой набор бетонных плит, цель которых уравновесить груз, висящий под стрелой. Чаще всего противовес устанавливают внизу крановой конструкции, связывая его тросами со стрелой. Но противовес может быть установлен и на специальной консоли напротив стреловой части, уравновешивая ее.

Чем башенные краны отличаются друг от друга?
Высотная спецтехника бывает разных видов и различается по целому ряду конструктивных решений.
По принципу мобильности:
- Стационарные краны – не имеют ходовой части. Их часто делают приставными. Такие крановые конструкции накрепко присоединяют к зданию, которое они строят. Приставное крановое оборудование не может перемещаться по стройплощадке. Зато в сравнении с передвижным оно дешевле, обладает более высокой грузоподъемностью и его проще монтировать.
- Передвижные краны – могут перемещаться по стройплощадке. Различаются по типу ходовой тележки. Самый распространенный вариант – рельсовый. Рельсы надежны, дают возможность управлять движением башенного гиганта из кабины оператора. В то же время рельсы необходимо время от времени осматривать и проверять на дефекты. От того, как уложены рельсы и в каком состоянии они находятся, напрямую зависит устойчивость крана.
Кроме того, передвижное крановое оборудование может находиться на гусеничной или на автомобильной платформе, иметь пневмоколесную ходовую тележку.
Встречается и шагающая спецтехника башенного типа.
По типу башни – с поворотной башней и с неподвижной. Кран с поворотной башней поворачивается целиком, за исключением рамы и ходовой тележки. Если башня неподвижная, то поворачивается только стреловая часть.
По типу стреловой конструкции – стрела бывает подъемная и балочная. У подъемной стрелы подъемно-грузовое устройство расположено на конце. Стреловая часть может подниматься под углом к башне, или опускаться вниз. Балочная стрела неподвижна. На ней установлена грузовая тележка, которая перемещается по всей длине стреловой части, меняя положение грузоподъемного механизма.
Кроме того, крановые конструкции башенного типа бывают быстрого монтажа, безоголовочные и высотные. Первые сконструированы таким образом, чтобы их можно было максимально быстро собрать на стройплощадке.
В конструкциях безоголовочного типа стреловой элемент удерживается в горизонтальном положении не тросами, а с помощью других механических устройств.
И наконец, высотное подъемное оборудование рассчитано на строительство небоскребов.
Видео: подъемный кран – из чего это сделано.
Почему он не падает?
На многометровый кран, пытаясь его уронить, действует множество сил. Самая большая – вес груза. Кроме того, при повороте крановых конструкций возникают центробежные силы. В результате торможения при подъеме или опускании груза, а также, когда кран двигался или разворачивался, появляются силы инерции.
Наконец, немалое влияние на устойчивость башенного гиганта оказывают атмосферные явления: ветер, снег и наледь на конструкциях. Все эти факторы учитываются при его проектировании:
- В основе конструкции любого башенного крана лежит идея уравновесить вес груза, который тому предстоит поднимать. Эту задачу выполняет противовес. Он сдвигает центр тяжести крановой конструкции в свою сторону, создавая задел устойчивости.
Она называется собственной. Когда крюк цепляет груз, центр тяжести смещается в сторону груза, но с учетом противовеса остается в допустимых пределах. Это называется грузовой устойчивостью. - Центробежные силы конструкторы ограничивают скоростью вращения узлов машины, от сил инерции избавляются, избегая резких остановок грузового троса и крановых механизмов.
- Для каждого башенного крана есть ограничения по скорости ветра. В штормовой ветер все работы прекращаются. Кроме того кран конструируют так, чтобы он обладал минимально возможной парусностью.
Техника не стоит на месте. Теория и практика строительства подъемных механизмов, дающих возможность строить высокие здания, продолжает развиваться, выполняя главную задачу: поднять все более тяжелые грузы как можно выше.
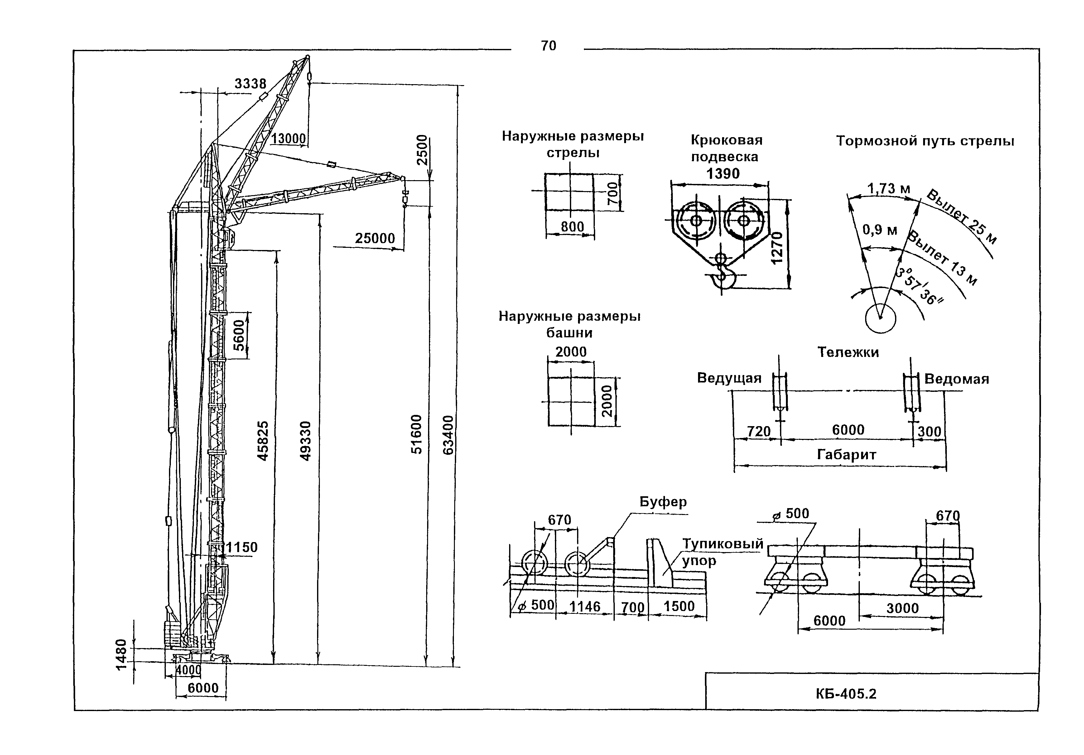
Конструктивные схемы башенных кранов
Категория:
Строительные машины и их эксплуатация
Публикация:
Конструктивные схемы башенных кранов
Читать далее:
Подкрановые пути
Конструктивные схемы башенных кранов
Самоходные башенные краны с неповоротной башней требуют значительной затраты времени на монтаж и демонтаж.
Поэтому краны с неповоротной башней в настоящее время почти не выпускаются, за исключением кранов грузоподъемностью свыше 15—20 т, а также кранов приставных и самоподъемных. Но из числа находящихся в эксплуатации краны с неповоротной башней еще составляют большую часть парка.
Башенный кран БК-300 с неповоротной башней и управляемой стрелой представлен на рис. 106. Кран имеет грузоподъемность 25 т при вылете 9 м и 8 т при вылете 30 м и максимальную высоту подъема крюка 72 м.
Башню этого крана можно подращивать секциями снизу и выдвигать телескопически при помощи лебедки и полиспаста. Кабина, грузовая и стреловая лебедки крана расположены на площадке на уровне верха портала. Груз противовеса подвешивается к противовес-ной консоли снизу. Механизм передвижения состоит из четырех трехколесных тележек.
Рекламные предложения на основе ваших интересов:
Дополнительные материалы по теме:
Башенный самоходный кран БКСМ-5-5Л с неповоротной башней и грузовой тележкой на стреле представлен на рис.
Рис. 106. Башенный кран (БК-300) с неповоротной башней
По нижнему концу стрелы, имеющему вид двутавровой балки, перемещается грузовая тележка. Противовесная консоль удерживается в горизонтальном положении тягами. На площадке противовесной консоли размещены три лебедки: грузовая, стреловая и передвижения грузовой тележки.
Краны с грузовой тележкой наиболее эффективно используются на монтажных работах при горизонтально расположенной стреле, обеспечивая плавную наводку конструктивных элементов сооружения на место установки.
Башенные самоходные краны с поворотной башней (рис. 108) изготовляются как с управляемой стрелой, так и с грузовой тележкой на стреле. Последние более предпочтительны для монтажа зданий и сооружений из сборных элементов.
Рис. 107. Башенный кран (БКСМ-5-5Л) с неповоротной башней и кареткой на стреле
Башня крана трубчатой конструкции опирается на поворотную платформу, на которой расположены грузовая лебедка, лебедка изменения вылета стрелы, механизм поворота и контргруз в виде железобетонных блоков. Поворотная платформа соединена с рамой ходового устройства шариковым опорно-поворотным кругом.
Ходовые двухколесные балансирные тележки соединяются с рамой флюгерами, благодаря которым компенсируется неточность укладки рельсового пути и создается возможность перемещения по криволинейному пути с малым радиусом закругления.
Две тележки из четырех являются ведущими и две ведомыми.
Стрела крана трубчатой конструкции в основном составлена из двух пустотелых балок эллиптического сечения, соединенных между собой перемычками. Удерживается стрела в заданном положении канатной тягой, полиспастом и стрелоподъемной лебедкой. Кабина машиниста выносная с расположенной в ней аппаратурой управления может изменять свое положение по высоте башни.
Благодаря тому, что все механизмы крана с поворотной башней расположены на поворотной платформе, в одном месте, значительно облегчается его обслуживание в процессе эксплуатации. Центр тяжести находится сравнительно низко, что обеспечивает лучшую устойчивость крана.
Для облегчения условий монтажа и улучшения условий работы машиниста краны этого типа (рис, 109), предназначенные для строительства более высоких зданий (до 16 этажей), монтируются предварительно с неполной высотой башни, которую впоследствии наращивают периодически, по мере увеличения высоты строящегося здания.
Наращивание башни производится снизу отдельными секциями, которые заводятся в П-образный проем основания башни.
Приставные башенные краны применяются для возведения многоэтажных зданий высотой более 12—16 этажей (рис. ПО).
Отличительная особенность этого крана в том, что он не имеет механизма передвижения, устанавливается стационарно вблизи здания и прикрепляется к нему в нескольких точках по мере увеличения собственной высоты в результате наращивания башни.
Стрела крана должна иметь большой вылет — от 30 до 60 м — для обслуживания фронта необходимой протяженности, определяемого условиями технико-экономической целесообразности.
В связи с увеличением числа возводимых высотных зданий намечается тенденция к более широкому применению приставных кранов и увеличению вылета стрел до 50—60 м.
Самоподъемные краны устанавливаются на конструкциях строящегося сооружения и периодически поднимаются с помощью собственных устройств с этажа на этаж, или на несколько этажей, по мере возведения здания.
Самоподъемные краны, так же как и приставные, могут обслуживать строительство зданий и сооружений практически любой высоты, ограничиваемой только канатоемкостью лебедки. К недостаткам подобных кранов относятся затруднения в демонтаже после завершения стройки.
Процесс установки и сборки башенных кранов
Горизонт любого города почти всегда включает в себя несколько башенных кранов, которые являются одними из самых заметных элементов строительного оборудования. Башенные краны используются строительными предприятиями для подъема крупных предметов, таких как сталь и бетон. Башенные краны также используются для перевозки крупных предметов, таких как ацетиленовые горелки, двигатели и генераторы. Строительные башенные краны находятся в центре внимания на строительных площадках по всему миру. Большинство крупных строительных площадок полагаются на них как на основу и рабочую лошадку. Если они не работают, рабочее место не работает с максимальной эффективностью. Именно поэтому монтажу башенных кранов уделяется такое большое внимание.
Если вы хотите установить кран в Абу-Даби, это руководство может вам помочь.
На строительных площадках строительный башенный кран является популярным грузоподъемным оборудованием. Кран получил прозвище башенный кран, потому что он вращается вокруг массивной башнеобразной конструкции. Стрела и ответная стрела поддерживаются мачтой башни, усиливая кабели, тележку и крюк, которые поднимают груз.
Необходимость установки башенного крана в здании Современные башенные краны позволяют строительным предприятиям работать быстрее и эффективнее. Эти тяжелые предметы первой необходимости необходимы для легкого выполнения даже самых сложных работ по дому. Представьте себе большую строительную площадку, где в поле зрения нет ни одного башенного крана. Даже со всеми рабочими на строительной площадке электрический генератор нельзя было поднять на много лестничных пролетов. Без башенных кранов строительный сектор отстал бы на десятилетия. Мы потеряли бы не только впечатляющие здания современных городов, но и их мосты, надземные железные дороги и другие удобства.
Строительные площадки будут потреблять гораздо больше энергии, чем сейчас.
Башенный кран – обычное явление на строительных площадках по всему миру. Их, казалось бы, бесконечные небоскребы возвышаются на сотни футов над землей, усеивая горизонты почти каждого крупного мегаполиса. Когда проект требует подъема тяжестей на большую высоту, эти массивные машины пригодятся, но их покупка может быть дорогостоящей. В результате подрядчики обычно ищут башенные краны в аренду.
Типы башенных крановСуществует столько различных типов башенных кранов, сколько и требований к подъему. Ниже перечислены наиболее распространенные типы башенных кранов, используемых на строительных площадках.
- Кран-молот имеет горизонтальную стрелу, которая фиксируется на месте, и узел тележки, который перемещается по длине стрелы для позиционирования крюка. У некоторых башенных кранов-молотов есть подвесные линии между стрелой / противовесом и верхним узлом башни, в то время как другие имеют конструкцию с «плоской вершиной», в которой нет вершины башни или подвесных линий.

- В кранах такого типа используется стрела, которая вращается вверх и вниз с крюком, соединенным с концом стрелы. Этот кран очень удобен на ограниченных строительных площадках. Когда стрела крана с маховой стрелой не используется, она размещается под более высоким углом стрелы, что уменьшает радиус, необходимый для защиты от атмосферных воздействий, до менее чем половины максимально возможного вылета.
- Самомонтирующийся кран представляет собой башенный кран меньшего размера, устанавливаемый на рабочей площадке без вспомогательного крана. Этот тип крана обычно выдвигает мачту перед тем, как разложить стрелу, с помощью гидравлических цилиндров, постоянно прикрепленных к крану. Эти краны не могут быть присоединены к конструкции и имеют ограниченную высоту крюка, но они идеально подходят для небольших или краткосрочных проектов, где фиксированные расходы на строительство стандартной «башни» были бы непомерно высокими
В зависимости от положения крана на стройплощадке мы можем указать место за пределами или внутри плана этажа строительного объекта.
- Если кран расположен за пределами этажа строительного плана – С точки зрения хода строительства предпочтительнее размещать башенный кран за пределами плана этажа построенного сооружения. Такой кран не мешает ходу строительства, а дату его демонтажа можно перенести в случае необходимости без ущерба для процесса застройки. Это также позволяет установить кран до начала фундаментных работ. Расположение крана вне плана этажа построенной конструкции обеспечивает удобную доставку материалов краном и отличный обзор транспортных средств из кабины машиниста крана во время сбора материала, что ускоряет работу крана и повышает безопасность. Существующие подземные инфраструктурные коммуникации перед сооружением и их защитные зоны (газопроводы высокого давления, канализационные коллекторы и т. д.), крайняя подземная часть сооружения или строительный котлован для конструкции подвального комплекса могут создавать проблемы для такого типа крана. договоренность. Затем башенный кран необходимо отодвинуть от конструкции на расстояние, не представляющее угрозы для подземных коммуникаций или целостности борта строительного котлована.
Специальные фундаменты, такие как микропилоты, могут быть предназначены для гашения нагрузки на борт строительного котлована. - Если кран расположен внутри этажа строительного плана. Если кран необходимо разместить в пределах плана этажа построенной конструкции, он обычно устанавливается на нижележащую конструкцию конструкции, которая соответствующим образом регулируется. Часть базовой конструкции, где будет пришвартован кран, может быть построена заранее, что сократит время строительства. Горизонтальный вылет крана уменьшен из-за его расположения внутри конструкции. В результате его балка может быть короче, чем у крана, расположенного вне плана этажа конструкции. С другой стороны, размещение кранов внутри конструкции затрудняет продвижение. В большинстве случаев монтажные отверстия для башни крана должны быть оставлены в потолочных конструкциях. Статические измерения проводятся для определения расположения монтажных отверстий. Размер монтажного отверстия также должен обеспечивать безопасную разборку краном.
Монтажных отверстий можно избежать, установив краны в шахтах лифтов, которые должны быть достаточно большими, чтобы вместить башню крана, ее сборку и разборку, а также опалубку стен шахты. В результате шахты лифтов редко подходят для размещения кранов. В плане этажа построенной конструкции башенный кран может быть установлен непосредственно на земле и перемещен, чтобы обеспечить продолжение строительства после завершения определенной части конструкции. Такой подход к строительству идеально подходит для проектов, состоящих из нескольких частей, таких как малоэтажные конструкции. Перемещение крана возможно только после установки всех тяжелых секций строительной конструкции, что может привести к задержкам в процессе строительства. Также может быть проблема, если есть какие-либо подземные воды. Установка вышеупомянутого крана препятствует завершению базовой конструкции и создает водонепроницаемую чашу. Из-за тесноты на площадке и прогресса строительства может возникнуть ситуация, когда башенный кран необходимо установить на готовую потолочную конструкцию.
Этот метод используется, например, для ускорения строительства за счет установки опорных кранов с возможностью последующего перемещения башенного крана. Конструктор-конструктор оценивает потолочную конструкцию и, при необходимости, усиливает или поддерживает ее с помощью распорок. Нагрузка от крана передается на многочисленные потолочные плиты, расположенные друг под другом, а возможно и в конструкцию основания, с помощью колонн.
Заключение
Башенные краны позволили безопасно и эффективно транспортировать сталь и бетон, необходимые для строительства небоскребов, что привело к созданию легендарных горизонтов. Если вы хорошо разбираетесь в строительных кранах, вполне возможно проехать и увидеть краны со свежим взглядом на их выдающиеся инженерные решения.
Данное Положение о методе установки башенного крана устанавливает последовательность и объясняет процессы управления, которым необходимо следовать.
Сборка башни крана Когда речь идет о кранах и маневрах, используемых для сборки, разборки и подъема башенного крана, важно соблюдать правила безопасности и защиты и строго контролировать каждый шаг.
Строительство башенного крана после разгрузки компонентов на строительной площадке. Эта процедура влечет за собой установку и установку крана на его фундаменте и месте, чтобы он мог выполнять функции, для которых он был разработан.
Все предложения в руководстве производителя должны соблюдаться персоналом по сборке и разборке, которые должны быть дополнены письменными инструкциями от специалиста, отвечающего за сборку (специалист с высшим образованием или техник с опытом сборки башенных кранов). , вы можете выбрать услуги по установке крана Technomax в Абу-Даби).
Следующая информация о кране должна быть включена в письменный приказ ответственного специалиста:
- Марка, тип и модель — все это важно учитывать.
- Начальная и конечная монтажная высота в метрах.
- Длина пера и контрпера измеряется в миллиметрах.
- Множество факторов, в том числе требуемое расположение, размер и масса воздушного противовеса.

- Начальные и конечные характеристики гирь (геометрия, размеры, масса и порядок).
- Подъемный трос имеет несколько ответвлений.
- Часть проводников и напряжение питания
- При превышении уровня автономии будет реализована программа стабилизации.
Поскольку краны и маневры требуют стабильных условий, перед началом сборки башенного крана необходимо выполнить следующее:
· Изучение механики грунта фундамента.
· Базовые балласты и воздушные противовесы могут быть изготовлены из металла, бетона или сыпучих материалов. Тем не менее, они должны храниться в закрытом и герметичном металлическом ящике в соответствии с техническими стандартами руководства по установке крана. Масса противовесов и балластов, создаваемых блоками, должна быть обозначена маркировкой, напечатанной легко читаемыми буквами. Массу используемого противовеса необходимо проверять каждый раз при установке крана, и они всегда должны быть закреплены на конструкции башенного крана.
Правильная конструкция и закрепление анкеров. Конструкция фундаментов, эффективно доставляющих максимальное количество газа в землю, должна быть рассчитана и разработана квалифицированными специалистами вуза. Рельсы и другие дорожные элементы должны быть установлены в соответствии с инструкциями производителя, а крепления рельсов должны соответствовать материалам несущей их конструкции.
Меры предосторожности при работе с башенным краномПри первоначальной установке крана на прямых и горизонтальных дорогах при использовании кранов и маневров допускаются следующие допуски:
Продольное выравнивание: Поверхность одного ряда рельсов не должна иметь дефектов более чем на 1/1000 ширины пути.
Поперечная планка: Разница высот между двумя рядами рельсов на одном пути не должна превышать 1/1000 ширины пути.
Как построить башенный кран?Расстояние между осями:
- Калибр и допуски должны соответствовать указанным в инструкциях производителя крана.
Головка каждого рельса должна располагаться между двумя параллельными вертикальными плоскостями с промежутком, равным номинальной ширине головки плюс 5 мм. - Уклон между стыками рельсов должен быть не более 2 мм.
- Разделение стыков рельсов: определяется на основе расчета расширения рельса.
- Максимальное поперечное выравнивание каждой опоры рельса должно составлять 3/1000 относительно горизонтальной плоскости.
- Состояние поступательного пути: Плоская поверхность головки рельса должна быть отцентрована в плоскости симметрии.
При воздействии ветра башенные краны на роликах должны иметь соответствующие средства иммобилизации во избежание любого движения. Эти устройства должны быть настроены в соответствии с инструкциями в руководствах производителя.
Процесс установки башенного крана Процедура сборки: Как правило, процесс установки башенного крана начинается с возведения основания башни, после чего следует установка первой секции, которая включает в себя диагонали, соединяющие ее с основание и часть базального балласта, и, наконец, горка.
Найдите хижину и голову башни.
Затем прикрепляются перо и встречная стрела. После установки последнего противовеса добавляется дополнительный базальный балласт. Стрела крана используется для установки новых деталей, пока кран не достигнет своей окончательной высоты.
Еще одним вариантом увеличения высоты является система, в которой узел башни-кабины-верхней части имеет более узкое сечение, чем остальная часть шахты. Новая часть с открытыми сторонами накладывается на башню, окружающую верхний блок.
Затем он забирается в эту недавно вооруженную часть.
Ступени для сборки башенного крана- Альпинистское снаряжение подготавливается после сборки тележки и базового балласта.
- Альпинистское снаряжение расположено на базовой секции башни.
- Вращающаяся часть, включающая поворотную гусеницу, кабину, оголовок башни и подъемную часть, собирается и соединяется со сборочной башней.
- Контр-гусек установлен.

- Крюк крана используется для крепления секции башни к монтажной крестовине.
- Компоненты системы подъема. Опорная шпала, сборочная башня и гидравлическое оборудование
Системы установки крана со временем значительно улучшились, чтобы сделать процесс быстрее, приятнее и проще, а также снизить стоимость операции.
Все узлы собираются с помощью быстроразъемных соединений, не требующих предварительного выравнивания.
Technomax имеет большой опыт сотрудничества с некоторыми из самых престижных компаний отрасли. Их своевременные, экономичные и прозрачные услуги — это лишь некоторые из веских причин работать с ними. Когда речь идет об установке промышленных кранов в Абу-Даби и других услугах, таких как техническое обслуживание, мониторинг состояния и диагностика оборудования, распространение электрических, механических и контрольно-измерительных изделий, а также хранение и поставка запасных частей для технического обслуживания, ремонта и эксплуатации, Technomax имя, которое нужно запомнить.
Их опытная и преданная команда неустанно работает над тем, чтобы достичь совершенства, чтобы предоставить лучшую в своем классе продукцию и установку кранов в Абу-Даби, а также другие услуги, связанные с кранами. Компания Technomax рада предоставить свои знания в области механики, конструкции и электрики, чтобы помочь вам с установкой крана в Абу-Даби. Они предлагают профессиональных специалистов, широкий спектр экспертных услуг и высококачественные краны, сделанные на заказ или собранные из компонентов. Вы можете на них положиться, потому что они имеют более чем 15-летний опыт работы в сфере мостовых кранов.
Они уделяют большое внимание обслуживанию клиентов, поэтому вы можете доверять им, чтобы удовлетворить ваши потребности и превзойти ваши ожидания. Они могут помочь вам со всем, что вам нужно!
Руководство по строительным башенным кранам
Поговорим о башенных кранах! Эти высокие и стройные фигуры являются основным продуктом строительных площадок и берут на себя большую часть тяжелой работы на месте.
Башенные краны являются одними из самых крупных единиц оборудования, используемых в строительных проектах. Строительные бригады используют башенные краны для подъема тяжелых материалов, таких как бетон и сталь. В этом блоге мы обсудим все, что связано с башенными кранами, и некоторые основные аспекты работы с этим оборудованием.
Значение башенных кранов на строительной площадке
Башенные краны позволяют генеральным подрядчикам и рабочим работать эффективно и продуктивно. Башенные краны справляются с самыми сложными задачами на строительной площадке, начиная от подъема и установки металлоконструкций на каждом уровне этажа и заканчивая окончательным электрическим и механическим монтажом. Эти тяжелые машины позволяют планировать логистику на месте для больших зданий, особенно в очень тесных городских условиях.
Без этих башенных кранов горизонты наших городов выглядели бы совершенно по-другому, поскольку подъемники, цепи, тросы и канаты на этих машинах делают строительные работы, ранее считавшиеся опасными, более безопасными и эффективными.
Будь то строительство моста, железной дороги или другого сооружения, всегда найдется специальный башенный кран, который может выполнить эту работу.
Части башенного крана
Башенные краны обычно состоят из трех основных частей: основания, мачты или башни и поворотный узел.
Основание
Базовая опора расположена в нижней части башни, обычно прикрепленной к бетонной подушке на земле. Этот прикрепленный бетонный фундамент несет на себе весь вес.
Мачта или башня
Мачта — это несущая конструкция, обеспечивающая высоту подъемного крана. Он соединен с основанием большой треугольной решеткой, которая придает крану прочность. Мачта выдвигается с нуля и поддерживает другие элементы, такие как крюк и противовесы.
Поворотный блок
Поворотный блок крепится к верхней части мачты и состоит из редуктора и двигателя, что позволяет крану вращаться вокруг своей оси.
Поворотный узел состоит из трех частей:
• Стрела или рабочая стрела . Стрела, также известная как рабочая стрела крана, представляет собой горизонтальный компонент, несущий груз, с тележкой, которая перемещается по ее длине для перемещения груза внутрь и наружу.
• Механический рычаг — этот рычаг представляет собой более короткий горизонтальный компонент, удерживающий грузоподъемный двигатель. Стрела механизма также содержит большие бетонные противовесы.
• Кабина оператора — Кабина представляет собой ящик, в котором сидит оператор во время управления башенным краном. Он содержит компьютер и джойстики, используемые для управления всеми функциями крана.
На что обратить внимание при выборе башенного крана
Требуемая грузоподъемность
Какие материалы или оборудование вы планируете поднимать? Будет ли ваш кран поднимать такие материалы, как опалубка и ведра с бетоном? Вам следует рассмотреть возможность использования относительно легкой модели.
Или ваш кран будет поднимать такое оборудование, как генераторы и большие стальные элементы? Здесь может помочь более тяжелая модель. Всегда учитывайте типичные лифты башенных кранов и лифты, спроектированные как критические. К критическим подъемам обычно относятся те, которые находятся в пределах 10% от общей грузоподъемности крана.
Доступность места
Одним из уникальных преимуществ башенного крана является мало места, которое он занимает на земле. Важно убедиться, что на положение башенного крана не влияют окружающие здания. Планирование расположения крана вдали от сооружений и объектов инфраструктуры, таких как линии электропередач, имеет решающее значение. Если башенный кран расположен рядом с обочиной или проезжей частью, убедитесь, что приняты меры защиты и специальные меры предосторожности для защиты людей.
Местонахождение
Поскольку большинство башенных кранов являются статичными, очень важно спланировать места комплектования вокруг башенного крана или спланировать расположение башенного крана вокруг мест комплектования.
Если вы строите высокое здание, критическим требованием будет высокая скорость крюка. Для подъема легких грузов необходимы высокие скорости передачи. Чем дальше груз от башни, тем слабее краны, поэтому важно спланировать положение крана рядом с местами комплектования, чтобы максимизировать его грузоподъемность.
Места подъема
Самое главное, сверьтесь с таблицами грузоподъемности, чтобы убедиться, что выбранный башенный кран может поднимать требуемые грузы с ожидаемым радиусом. Необходимо определить максимальный вылет и самые тяжелые грузы, чтобы убедиться, что выбранный кран сможет выполнять работу на месте. Используя диаграмму грузоподъемности и требуемое количество тяжелых подъемников в качестве справки, если имеется ограниченное количество этих тяжелых подъемников, может быть более экономически эффективным выбрать меньший башенный кран или рассмотреть возможность использования мобильного крана по мере необходимости.
Типы башенных кранов
Башенные краны с молотом
Кран с молотом является наиболее распространенной конструкцией башенного крана и конфигурацией, обычно связанной с башенными кранами.
К вертикальной башне крепится длинная горизонтальная стрела. Вдоль стрелы движется тележка для установки крюка. В некоторых кранах-молотах используется верхняя часть башни между узлом стрелы / противовеса, в то время как в других используется плоская верхняя часть без верхней части башни. Башенные краны с плоской крышей особенно полезны вблизи аэропортов или в условиях, когда несколько кранов перемещаются в одном и том же воздушном пространстве. Краны-молоты обычно дешевле, но занимают больше места на строительной площадке.
Башенные краны с подъемной стрелой
Этот тип башенного крана часто называют краном с подъемной стрелой или подъемной стрелой. Этот строительный башенный кран имеет диагональную стрелу, которая отходит от вершины башни под углом. В отличие от головки молотка, блок крюка расположен на конце стрелы, которая вращается вверх и вниз. Этот тип крана особенно полезен на тесных строительных площадках. В то время как большинство башенных кранов имеют фиксированную горизонтальную стрелу, стрелу с маховой стрелой можно поднимать или опускать, чтобы кран мог свободно качаться (флюгер) в уменьшенном радиусе.
В подъемной стреле не используется тележка, как в традиционных башенных кранах, вместо этого она поднимает или опускает стрелу по мере необходимости для подъема груза ближе к мачте. Подъемные краны обычно дороже. 9№ 0003
Самоподъемные башенные краны
Самоподъемный кран может быть полностью собран на месте без использования вспомогательного крана. Эти краны обычно экономят время и ресурсы. Самомонтирующиеся краны часто управляются дистанционно с земли, хотя некоторые версии могут иметь кабину на стреле. Эти краны имеют выдвижную мачту и стрелу, которая раскладывается с помощью гидравлических цилиндров, постоянно закрепленных на кране. Эти краны обычно являются отдельно стоящими с ограниченной высотой крюка и телескопическими башнями, что делает их подходящими для небольших конструкций или более коротких проектов.
Источники:





Она называется собственной. Когда крюк цепляет груз, центр тяжести смещается в сторону груза, но с учетом противовеса остается в допустимых пределах. Это называется грузовой устойчивостью.
Специальные фундаменты, такие как микропилоты, могут быть предназначены для гашения нагрузки на борт строительного котлована.
Монтажных отверстий можно избежать, установив краны в шахтах лифтов, которые должны быть достаточно большими, чтобы вместить башню крана, ее сборку и разборку, а также опалубку стен шахты. В результате шахты лифтов редко подходят для размещения кранов. В плане этажа построенной конструкции башенный кран может быть установлен непосредственно на земле и перемещен, чтобы обеспечить продолжение строительства после завершения определенной части конструкции. Такой подход к строительству идеально подходит для проектов, состоящих из нескольких частей, таких как малоэтажные конструкции. Перемещение крана возможно только после установки всех тяжелых секций строительной конструкции, что может привести к задержкам в процессе строительства. Также может быть проблема, если есть какие-либо подземные воды. Установка вышеупомянутого крана препятствует завершению базовой конструкции и создает водонепроницаемую чашу. Из-за тесноты на площадке и прогресса строительства может возникнуть ситуация, когда башенный кран необходимо установить на готовую потолочную конструкцию.
Этот метод используется, например, для ускорения строительства за счет установки опорных кранов с возможностью последующего перемещения башенного крана. Конструктор-конструктор оценивает потолочную конструкцию и, при необходимости, усиливает или поддерживает ее с помощью распорок. Нагрузка от крана передается на многочисленные потолочные плиты, расположенные друг под другом, а возможно и в конструкцию основания, с помощью колонн.
Головка каждого рельса должна располагаться между двумя параллельными вертикальными плоскостями с промежутком, равным номинальной ширине головки плюс 5 мм.
Добавить комментарий