Проектирование экскаватора: ПРОЕКТИРОВАНИЕ И АНАЛИЗ КОВША ЭКСКАВАТОРА В ПРОГРАММЕ ANSYS
ПРОЕКТИРОВАНИЕ И АНАЛИЗ КОВША ЭКСКАВАТОРА В ПРОГРАММЕ ANSYS
АННОТАЦИЯ
Целью данной статьи является проектирование ковша экскаватора с использованием программного обеспечения ANSYS 2018. Анализ силы и анализ прочности являются важными этапами проектирования деталей экскаватора. Анализ методом конечных элементов (МКЭ) является наиболее мощным методом, используемым для оценки прочности конструкций, работающих при высоких нагрузках.
Модель экспортируется через ANSYS 2018 для создания сетки в программном обеспечении для анализа граничных условий, а силы прикладывают к кончикам зубьев ковша экскаватора. Статический анализ выполняется в программе анализа ANSYS 2018. В данной работе рассчитываются напряжения, возникающие на концах зубьев ковша экскаватора. Структурный анализ был проведен на ковше экскаватора при различных углах наклона зубьев, таких как 250, 300, 350, 400, 450.
Был проведен анализ трех типов материалов: нержавеющая сталь, AISI-1045 и карбид TI, и исследовано воздействие различных напряжений и деформаций на ковш экскаватора при различных нагрузках. В этом исследовании также учитывалась различная ширина зубов.
ABSTRACT
The purpose of this paper is to design an excavator bucket using ANSYS 2018 software. Force analysis and strength analysis are important steps in the design of excavator parts. Finite element analysis (FEM) is the most powerful method used to evaluate the strength of structures operating under high loads.
The model is exported through ANSYS 2018 to create a mesh in the boundary condition analysis software, and forces are applied to the tips of the excavator bucket teeth. Static analysis is performed in ANSYS 2018 analysis software. In this paper, the stresses occurring at the tips of the excavator bucket teeth are calculated. The structural analysis was performed on an excavator bucket at different tooth angles such as 25 0, 300, 350, 400, 450.
Three types of materials were analyzed: stainless steel, AISI-1045 and TI carbide, and the effects of different stresses and strains on the excavator bucket under different loads were investigated. Different tooth widths were also taken into account in this study.
Ключевые слова: Ковш экскаватора, численное моделирование, экспериментальные испытания, проектирование, динамические нагрузки, метод конечных элементов (МКЭ), ANSYS, SolidWorks.
Keywords: excavator bucket, numerical simulation, experimental tests, design, dynamic loads, finite element method (FEM), ANSYS, Solid Works.
Вступление: Гидравлические экскаваторы представляют собой типичную гидравлическую сверхмощную машину, управляемую человеком, используемую в общих строительных операциях, таких как копание, выравнивание грунта, перевозка грузов, разгрузка грузов и прямолинейная тяга (1 рисунок). Обычно экскаваторы с обратной лопатой работают в наихудших условиях.
Рисунок 1. Схема гидравлического экскаватора в программе SolidWorks
Гидравлический экскаватор передвигается при помощи ходовой части на основе колесного или гусеничного хода, имеет поворотную платформу, на которой находятся двигатель, кабина оператора экскаватора, прочее навесное оборудование. Рабочим органом является стрела, оснащенная ковшом. Стрела управляется с помощью гидравлической системы (2 рисунок).
Рисунок 2.
Конструкция гидравлического экскаватора:
1 – элементы шасси; 2 – поворотная платформа; 3 – двигатель; 4 – кабина машиниста; 5 – стрела; 6 – рукоять; 7 – гидроцилиндры; 8 – ковш; 9 – зубья ковша
Ковш экскаватора является очень важным элементом (3 рисунок). Ковш экскаватора — это навесное оборудование для тяжелой техники, который предназначен для использования при земляных работах. Зубья ковша экскаватора должны выдерживать большие нагрузки таких материалов, как влажная почва и камень, а также подвергаться абразивному износу из-за абразивного характера частиц почвы, когда зубья разрушают материал, когда ковш протаскивает через него. Так повреждаются зубья ковша экскаватора и происходит износ [4].
Рисунок 3. Схема ковша гидравлического экскаватора в программе SolidWorks
Таким образом, он должен иметь достаточную грузоподъемность для длительного срока службы, потому что это тоже дорого.
Эта проектная работа включает анализ статической силы и модификацию конструкции обратной лопаты экскаватора. Наша основная цель – проанализировать ковш экскаватора на основе различных условий нагрузки для безопасного проектирования.
Литературное иисследование: Следующие исследовательские работы используются для получения глубокого понимания различных аспектов проекта.
Маниша и др.: В этой статье он обсуждает, что экскаватор является типичной гидравлической тяжелой машиной, управляемой человеком, используемой в общих строительных операциях, таких как копание, выравнивание грунта, перевозка грузов, разгрузка грузов и прямая тяга [8].
Калпак и др.: Зубья ковша экскаватора должны выдерживать большие нагрузки таких материалов, как почва, камень, и подвергаться абразивному износу из-за абразивного характера частиц почвы. Его зуб был поврежден из-за абразивного износа и ударной нагрузки.
Эта статья посвящена анализу зубьев ковша экскаватора, чтобы выяснить его фактическую неисправность.
Ян и др.: Гидравлические экскаваторы широко используются в строительстве, горнодобывающей промышленности, земляных работах и лесном хозяйстве. Разнообразие и удобное управление делают его популярным. Производительность гидравлического экскаватора зависит от его производительности переднего навесного оборудования обратной лопаты.
Йонас Хельгессонет и др.: Оптимизированная конструкция ковша важна для повышения производительности и погрузочных характеристик подземных погрузчиков. Теории дизайна сегодня трудно оценить из-за отсутствия методов проверки. В последующие годы разработка программного обеспечения и компьютеров для моделирования позволила проверить конструкцию путем моделирования процесса загрузки. Цель данной диссертации состояла в том, чтобы разработать и использовать имитационную модель процесса погрузки для одного из подземных погрузчиков Атлас Копко.
МехулКумар А. Патель и др.:
Гидравлические экскаваторы представляют собой тяжелые землеройные машины, состоящие из стрелы, рукояти и ковша. Он работает по принципу гидравлической жидкости с гидроцилиндром и гидромотором [5, 6].Доктор Сабах Хан, Шейх Мохашинет и др.: Экскаватор используется для погрузочно-разгрузочных работ на горнодобывающих и строительных площадках. Зубья ковша экскаватора должны выдерживать тяжелые динамические нагрузки.
Геометрическое моделирование: SolidWorks – программный комплекс САПР для автоматизации работ промышленного предприятия на этапах конструкторской и технологической подготовки производства (рисунок 4 и 5).
Рисунок 4. Модель ковша гидравлического экскаватора в программе SolidWorks
Обеспечивает разработку изделий любой степени сложности и назначения.
Рисунок 5. Разработана программе SolidWorks модель ковша экскаватора с зубами
Ansys – универсальная программная система конечно-элементного анализа, решения линейных и нелинейных, стационарных и нестационарных пространственных задач механики деформируемого твёрдого тела и механики конструкций (включая нестационарные геометрически и физически нелинейные задачи контактного взаимодействия элементов конструкций), а также механики связанных полей (рисунок 6).
Рисунок 6. Ковш экскаватора после мелких сеток в программе Ansys
Типичный анализ ANSYS состоит из следующих шагов:
Постройте модель, используя ключевые точки, линии, области и команды объема.
Придание материалу свойств.
Выбор подходящего элемента.
Связывание модели с дискретными элементами.
Применение заданных нагрузок.
Применение граничных условий.
Запуск фазы решения.
Просмотрите результаты с помощью постпроцессора.
Результаты и обсуждения: Основная цель этого исследования – провести структурный анализ ковша экскаватора с различными материалами при различных нагрузках и выяснить поведение ковша экскаватора при различных углах наклона и ширине. Здесь в этом анализе были рассчитаны различные факторы путем приложения нагрузок к соответствующим секциям ковша экскаватора. Был проведен структурный анализ ковша экскаватора при различных наклонах 25
а) б)
с) д)
Рисунок 7. Структурный анализ ковша гидравлического экскаватора.
а) Эквивалентное напряжение ковша гидравлического экскаватора; б) Напряжения сдвига, возникающие в ковше гидравлического экскаватора; с) Касательные напряжения, возникающие в ковше гидравлического экскаватора; д) Эквивалентная упругая деформация ковша гидравлического экскаватора
В этом случае в качестве материала используется нержавеющая сталь, а нагрузка действует на ковш экскаватора, и выполняется структурный анализ для определения общей деформации, эквивалентных напряжений, эквивалентного напряжения сдвига и касательные напряжения в ковше экскаватора. И результаты были наглядно показаны на рисунке. Вышеупомянутый анализ был проведен на всех частях ковша экскаватора, расстояние между зубьями ковша экскаватора сохранялось одинаковым по длине, результаты анализа объясняются одинаково.
Мы обнаружили, что при выполнении структурного анализа ковша экскаватора максимальные и минимальные значения были перечислены в таблице ниже.
Таблица 1.
Деформации для AISI 1045
|
№ |
Тип напряжения |
Полученное значение |
|
|
Максимальный |
Минимальный |
||
|
1 |
Полная деформация |
2.3925 |
0 |
|
2 |
Эквивалентные напряжения |
101. |
0.0014474 |
|
3 |
Эквивалент напряжения сдвига |
0.00050168 |
1.7542e-8 |
|
4 |
Эквивалент касательного напряжения |
39.815 |
-42.197 |
Таблица 2.
Деформации в карбиде TI
|
№ |
Тип напряжения |
Полученное значение |
|
|
Максимальный |
Минимальный |
||
|
1 |
Полная деформация |
1. |
0 |
|
2 |
Эквивалентные напряжения |
100.4 |
0.0010993 |
|
3 |
Эквивалент напряжения сдвига |
0.00022561 |
5.9912e-9 |
|
4 |
Эквивалент касательного напряжения |
39.955 |
-42.628 |
Вывод: Мы спроектировали ковш экскаватора с помощью программного обеспечения SolidWorks, а анализ выполнен с помощью программного обеспечения ANSYS 18.1. Напряжение на вершине зубьев ковша экскаватора рассчитано 96,39 МПа, а напряжение от срезания заклепки рассчитано аналитически 157,67 МПа.
Расчетное напряжение на вершине зубьев составляет 112,98 МПа, а напряжение от сдвига заклепки – 167,42. Процентная ошибка между аналитическим результатом и результатом Ansys составляет 14,69 % и 5,82 %. В соответствии с приведенным выше анализом предлагается, чтобы ковш, используемый для земляных работ, был должным образом проверен на предмет его применения на основе слоев почвы. А учитывая поломку зуба и заклепки из-за ударной нагрузки, очень экономично изменить узел зуба, а также наклон и толщину зуба.
Списоклитературы:
- Павлов В.П., Абрамов А.Н. Рекомендации по выбору параметров экскаваторных ковшей// Транспортное строителсьство. 1984. №7. С. 35 – 36.
- Кузнецова В.Н., Савинкин В.В. Анализ эффективности работы одноковшового экскаватора//Вестник СибАДИ. 2014. №6. С. 26 – 33.
- Тарасов В.Н., Коваленко М.В. Механика копания грунтов, основанная на теории предельных касательных напряжений//Строительные и дорожные машины.
2003. №7. С. 38 – 43. - Тарасов В.Н., Коваленко М.В. Механика копания грунтов ковшом гидравлического экскаватора//Строительные и дорожные машины. 2003. №8. С. 41 – 45.
- Bhaveshkumar P. Patel and Dr.J.M. Prajapati,”A Review On Kinematics Of Hydraulic Excavator’s Backhoe Attachment”, International Journal of Engg. Science and Technology (IJEST)Vol.No.3.Issue No.3.March 2011.
- Ahmet Erklig and Eyup Yeter,”The Improvements of The Backhoe-Loader Arms”, Model Simulation ofMaterial Science, Issue No 3, January 2013,PageNo.142-148.
- Rahul Mishra and Vaibhav Dewangan,“OPTIMIZATION OF COMPONENT OFEXCAVATOR BUCKET” International Journal ofScientific Research Engineering and Technology(IJSRET), Vol. no.2,Issue No.2,Page No. 076-078.
- Manisha P. Tupkar, Prof. S.R. Zaveri,“Design and Analysis of an Excavator Bucket”, InternationalJournal of Scientific Research EngineeringTechnology, Vol. 4, Issue 3, March 2015.
- Modeling and Static Analysis of Backhoe Excavator Bucket (Mr.
Swapnil S.Nishane 1, Dr. S.C.Kongre 2, Prof. K.A. Pakhare) International Journal of Research in Advent Technology, Vol.4, No.3, March3016 E-ISSN: 2321-9637 Available online atwww.ijrat.org
Проектирование экскаватора с модернизацией ковша реинжиниринг
Проектирование экскаватора с модернизацией ковшей разработка бульдозера погрузчика реверс-инжиниринг строительной техники обратное проектирование по гост гидропривод ковша пневмо колесный ход
Проектирование строительной техники и их запчастей: экскаватора, бульдозера, погрузчика.
Наша компания КБ ИнженерГрупп предлагает услугу проектирование в различных областях и сферах деятельности. Мы гарантируем качественное и быстрое выполнение поставленных задач. Если вы нуждаетесь в специалистах нашего профиля, оставляйте заявку на сайте и наш конструктор с вами свяжется.
Обратный звонок
Мы предлагаем услуги по проектированию строительной техники, а также сельскохозяйственной техники.
Выполняем реверс инжиниринг деталей, запчастей, составляющих и самих агрегатов. Можем спроектировать и модернизировать ковши экскаваторов, бульдозеров. Мы имеем большой опыт в разработке подобных проектов. Ознакомиться с реализованными проектами вы можете в разделе «Портфолио».
В статье ниже вы сможете ознакомиться с проделанной работой по проекту «Проектирование и модернизация одноковшового экскаватора на пневмо колесном ходу с прямой лопатой».
Проектирование рабочего оборудования экскаватора
Цена на Проектирование экскаватора и проектирование оборудования для экскаватора зависит от параметров изменений и доработок. Рабочее оборудование экскаватора, применяемое для различных видов земляных работ и климатических условий, имеет основные классификационные признаки описанные ниже.
По назначению
По сложности
По типу
По форме режущей части поперечного сечения
По числу открытых поверхностей
По схеме взаимодействия с грунтом
По траектории движения
По непрерывности взаимодействия с грунтом
По принципу воздействия на грунт
По виду случайного процесса нагружения
По назначению
По сложности
По типу
По форме режущей части поперечного сечения
По числу открытых поверхностей
По схеме взаимодействия с грунтом
По траектории движения
По непрерывности взаимодействия с грунтом
По принципу воздействия на грунт
По виду случайного процесса нагружения
Проектирование и модернизация одноковшового экскаватора на пневмоколёсном ходу с прямой лопатой
Одноковшовые экскаваторы продолжают занимать ведущие места среди машин для земельных работ и их технико-эксплуатационные показатели в значительной мере определяются типом привода, усовершенствованием конструкции, качеством изготовления и организационно-техническим уровнем эксплуатации.
В настоящее время выпускают широкую гамму одноковшовых экскаваторов ІІ-VІ размерных групп с гидравлическими, механическими, гидромеханическими и электромеханическими приводами. Широкое использование гидропривода главным образом изменяет конструктивные и эксплуатационные показатели одноковшовых экскаваторов и существенно повышает их уровень, поэтому в последнее время внимание отводится развития производства экскаваторов с гидроприводом. Ниже приведен перечень тенденций развития экскаваторов.
Модернизация экскаваторов
- Повышение производительности новых экскаваторов с понижением удельной материалоемкости и удельной энергоемкости машин
- Колоссальное улучшение показателей надежности и технического обслуживания
- Универсализация машин за счет увеличения количества видов сменного рабочего оборудования
- Разработка и применения унифицированных составляющих частей и комплектующих изделий для их использования в новых машинах
- Проектирование машин нового смешанного типа – экскаваторов-манипуляторов-бульдозеров с комплектом быстросъемных рабочих органов для комплексной механизации работ в строительстве
- Максимальная автоматизация рабочих операций и управления силовой установкой;
- Модернизация систем управления с образованием комфортных условий для работы машиниста
- Внедрение современных микропроцессорной техники и диагностических средств с соответствующим устройством отображения информации
Таким образом можно модернизировать и универсализировать строительные машины, а также и сельскохозяйственные машины за счет новых уникальных деталей и систем.
Поэтому Реверс-инжиниринг с элементами модернизации в настоящее время имеет огромную популярность, в том числе и импортозамещение оборудования. В связи с этим советует посетить страницы «Импортозамещение оборудования» и «Реверс-Инжиниринг«
Оборудование — обратная лопата , это один из самых распространенных видов сменного рабочего оборудования, сокращенно РО, для одноковшового гидравлического экскаватора, кот орый предназначен для разработки грунта выше и ниже уровня стоянки и погрузочно-разгрузочных работ с разнообразными материалами. Ниже представлено изображение экскаватора с подобным оборудованием.
Экскаватор с рабочим оборудованием обратная лопата
Все виды рабочего оборудования должны обеспечивать выполнение самых разнообразных земляных и погрузочно-разгрузочных работ в строительстве, сельском и коммунальном хозяйстве. При этом стараются максимально унифицировать элементы для легкого переоборудования с одного вида на другой. Таким образом будет произведена универсализация среди различных видов машин.
Поэтому проектирование экскаватора с элементами модернизации или реверс инжиниринг оборудования экскаватора или бульдозера актуальная услуга на сегодняшний день.
Проектирование рабочего оборудования для гидравлических экскаваторов
Мы осуществляем проектирование гидропривода для экскаваторов. Основные преимущества гидропривода, позволяют значительно расширить сферу использования экскаваторов с гидроприводом за счет применения различных видов сменного рабочего оборудования, число которых для одной машины достигает 30-35.
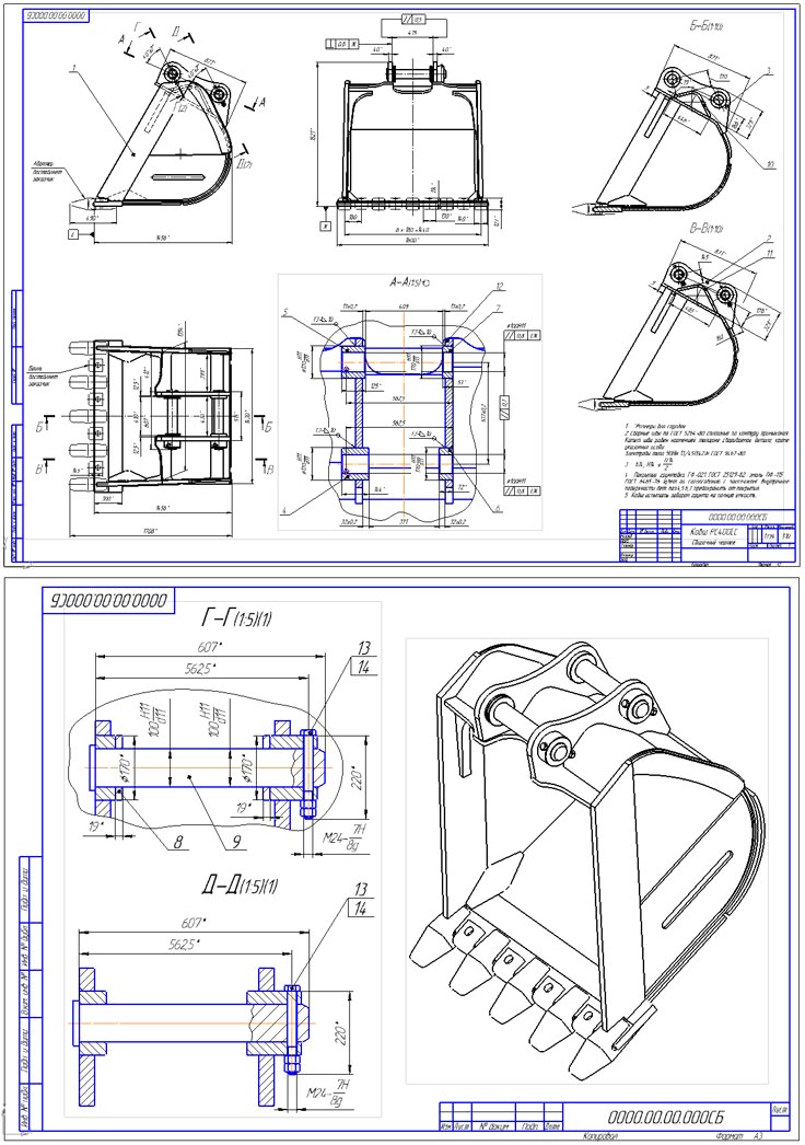
Как правило, ковши для земляных работ сварной конструкции с зубьями. Количество зубьев зависит от ширины ковша и вида работ, для которых ковши предназначены. Ковши для рытья траншей часто снабжаются дополнительными боковыми зубьями. Зубья, как правило, крепятся в специальных; гнездах при помощи чеки.
В зависимости от выполняемых работ и с целью наибольшего использования экскаватора в данных условиях, любой из видов рабочего оборудования может оснащаться различными сменными рабочими органами.
ковшами увеличенной емкости, с сетчатым дном, профильными; разнообразными захватами и приспособлениями для погрузки штучных (труб, бревен и т. п.) или сыпучих грузов, сена и т. д.; планирующими ковшами, ножами и отвалами; зубьями для рыхления Дорожных покрытий и корчевания пней и др.
Проектирование ковшей экскаватора
- Ковши увеличенной емкости, с сетчатым дном, профильными;
- Ковши с разнообразными захватами и приспособлениями для погрузки штучных или сыпучих грузов
- Планирующими ковшами, ножами и отвалами
- Ковши с зубьями для рыхления дорожных покрытий и корчевания пней
- и др.

Назад
Дальше
Кроме того, для изменения параметров рабочего оборудования широко применяют дополнительные вставки и сменные элементы его, например, рукояти различной длины, а также стрелы составной конструкции.
Многие фирмы выпускают ковши для работы в липких и влажных грунтах. Эти ковши снабжаются автоматическими выталкивателями – «эжекторами», очищающими внутреннюю поверхность ковша 4 при разгрузке.
По общей конструктивной схеме рабочее оборудование гидравлических экскаваторов может быть шарнирно-рычажным и телескопическим.
Шарнирно-рычажное (или шарнирно-сочлененное) рабочее оборудование применяется в основном для землеройных работ (рытье траншей, разработка котлованов и т. д.), и состоит из стрелы, рукояти, рабочего органа, гидроцилиндров и вспомогательных деталей (тяг, кронштейнов и ряда приспособлений для установки сменных рабочих органов).
Рабочее оборудование экскаваторов виды
Шарнирно-рычажное
Шарнирно-рычажное (или шарнирно-сочлененное) рабочее оборудование применяется в основном для землеройных работ (рытье траншей, разработка котлованов и т. д.), и состоит из стрелы, рукояти, рабочего органа, гидроцилиндров и вспомогательных деталей (тяг, кронштейнов и ряда приспособлений для установки сменных рабочих органов).
моноблочные стрелы разной длиной;
сменные рукояти обратной лопаты длиной 2.2, 3 и 3.8 м;
рукояти грейферного оборудования длиной 2,85 м и 3.5 м
стрела прямой лопаты длиной 3.5 м;
рукоять прямой лопаты, оборудуемой ковшом с открывающимся днищем длиной 2.5 м;
рукоять прямой лопаты с поворотным ковшом длиной 3.5 м
ковш обратной лопаты;
серьга для установки грейфера на рукояти обратной лопаты;
- грейфер
- ковш прямой лопаты с открывающимся днищем
- поворотный ковш прямой лопаты;
Ниже показаны основные схемы привода элементов шарнирно-сочлененного РО экскаваторов.
Схемы соединения элементов шарнирно-сочлененного РО:
1— стрела; 2 — рукоять; 3 – ковш.
а, в — привод стрелы; г и д — привод рукояти; е, з — привод ковша.
Для привода стрелы применяют три схемы, расположения стрелы и гидроцилиндра:
- гидроцилиндр расположен под стрелой, перед ее пятой, эта схема наиболее распространена;
- гидроцилиндр расположен над стрелой;
- гидроцилиндр расположен за пятой стрелы.
Цилиндр привода рукояти располагается над стрелой, либо под нею, первая схема используется при оборудовании экскаватора обратной лопатой, а вторая — прямой.
При необходимости модернизации или изменения конструкции с элементами модернизации мы выполним проектирование экскаватора или проектирование оборудования для экскаватора в кротчайшие сроки с гарантией качества по договору. Ознакомиться с проектом договора вы можете здесь.
Телескопическое
Проснувшись однажды утром после беспокойного сна, Грегор Замза обнаружил, что он у себя в постели превратился в страшное насекомое.
Расчет эффективности
При определении энергоемкости процесса копания грунта, величин и характера изменения составляющих усилия резания, действующих на рабочий орган, необходим учет схемы его взаимодействия с грунтом, как при анализе работы существующих землеройных машин, так и при создании новых.
Одним из характерных примеров эффективного учета схем взаимодействия рабочих органов с грунтом служат исследования, проведенные в научно-производственном объединении «ВНИИЗеммаш», и разработанные на их основе предложения по возможным типам рабочих органов и схемам их взаимодействия с грунтом.
Расчет нагрузок
Рабочие органы землеройных машин в процессе взаимодействия с грунтом испытывают случайные нагрузки, изменяющиеся во времени. В зависимости от типа рабочего органа, грунтовых и других условий случайные процессы изменения нагрузок различны. Поэтому важным является вычисление данных величин при использовании определенного оборудования в различных климатических условий и физических свойств грунта.
Наши специалисты имеют огромный опыт в выполнении расчетов различной сложности. Подробнее ознакомиться с перечнем вычисляемых нагрузок вы можете на странице «Расчеты«. Без предварительного просчета нагрузок воплощение проекта в реальность в 99% потерпит неудачу. Поэтому своевременное тестирование на нагрузки в программной среде является неотъемлемым элементом в процессе разработки проекта. Наши опытные специалисты помогут в данном вопросе. Чтобы связаться с нашим сотрудником достаточно заполнить форму на нашем сайте, например, здесь.
Общую классификацию случайных процессов изменения нагрузок, действующих на рабочие органы землеройных машин можно провести по следующим основным классификационным признакам:
Стационарности
- стационарные,
- нестационарные;
Эргономичности
- эргономические,
- не эргономические;
Дифференцируемости
- дифференцируемые,
- недифференцируемые.

Классификация подобного рода позволяет использовать основные статистические характеристики и статистические свойства однотипных, случайных процессов нагружения для анализа и оценки не только каждого рабочего органа землеройной машины, но и групп рабочих органов, подвергающихся режимам нагружения одного типа.
Общий расчет рабочего оборудования
При резании грунта форма поперечного реза грунта принимает трапецеидальную форму, после чего он предложил учитывать при определении силы резания фактор пространственности.
Сила сопротивления при блокированном резании ножом простой формы, выведенная ученым, имеет вид:
Ρ = γ mсв bh+2mбок h2+2 mбок.ср h
где γ – коэффициент, учитывающий угол резания;
mсв – удельная сила резания образующаяся в лобовой части прорези при угле резания α = 45;
b и h – ширина и глубина резания;
mбок – коэффициент, характеризующий силу возникающую при разрушении грунта в боковых частях прорези;
mбок.
ср – коэффициент, характеризующий удельную силу возникающую при срезе одним из боковых ножей грунта.
При резании грунт разрушается в результате развития в нем сложного напряженного состояния, и этот процесс перед лобовой гранью ножа и по боковым расширениям прорези протекает по-разному. Сопротивление грунта разрушению в боковых расширениях прорези (здесь преобладают деформации отрыва и сдвига), отнесенное к единице площади их сечений, в 2 — 4 раза меньше, чем соответственное удельное лобовое сопротивление по ширине b ножа, где преобладают деформации сжатия и сдвига грунта.
Такие закономерности, как показывает опыт, сохраняются лишь до определенного соотношения между шириной и толщиной среза, соответствующего критической глубине hкр резания. При h > hкр (например, форма прорези АВС1D1ЕР) изменяется в основном только глубина центральной части прорези, а АВ и ЕF по верхней части практически не изменяются.
Критической глубине резания, как правило, соответствует наименьшая энергоемкость резания, что должно учитываться при создании и эксплуатации
Было установлено:
– боковые расширения прорези возрастают пропорционально увеличению ширины ножа, но до определенных его размеров, и последующее увеличение не приводит к увеличению боковых расширений прорези;
– объем грунта или зона разрушения, отделяемая от массива при резании ножом, увеличивается до определенной глубины, и дальнейшее заглубление ножа является не целесообразным, т. к. не приводит к увеличению отделяемой зоны.
а – при увеличении ширины ножа; б – при увеличении глубины резания.
Большое влияние на сопротивление грунта резанию оказывают изнашивание режущего инструмента рабочих органов и затупление его. При разработке грунта изношенными рабочими органами на поверхности его затупления, форма и размеры которой обычно характеризуются размерами z, у и радиусом r, образуется нарост уплотненного грунта — ядро 1.
Это ядро грунта перемещается вместе с рабочим органом, увеличивая радиус затупления, смятия грунта и сопротивление движению рабочего органа. Поверхность износа по задней грани режущего клина, характеризуемая размером у, составляет к траектории резания обычно отрицательный задний угол θ1 который может достигать 7…10°. Поэтому на площадке износа задней грани при движении режущего элемента возникают значительные дополнительные сопротивления на смятие и уплотнение грунта по следу его движения.
Следует отметить, что влияние затупления и образования площадки износа по задней грани может быть весьма велико и преобладать в общем сопротивлении резанию. Допускаемый на практике большой износ зубьев и режущих кромок ножей отвалов и ковшей вызывает иногда увеличение сопротивления резанию до 150 − 200% и ведет к большому повышению энергоемкости копания и снижению производительности машин вследствие увеличения длительности копания и ухудшения наполнения ковшей и призмы волочения у отвальных машин.
Поэтому при создании машин необходимо учитывать при определении расчетных сопротивлений износ режущих элементов рабочих органов, а при эксплуатации не допускать работу с чрезмерно изношенными рабочими органами. Обычно износ рабочих органов у землеройных машин в зависимости от их размеров допускают в пределах: z = 7…12мм; у = (3…7)z; r = 3…10 мм.
Первым кто систематически исследовал вопрос отделения грунта от массива рабочим органом, был академик В.П. Горячкин. Предложенная им формула стала основой теории резания, она определяла силы сопротивления резанию грунта плугом, полностью отображая физику процесса, и была удобным аналитическим основанием для расчета сельскохозяйственных машин:
Ρ = fG + kab + εabυ2,
где f – коэффициент трения плуга о грунт;
G – вес плуга;
K – коэффициент сопротивления деформации среза;
а – ширина среза;
b – толщина среза;
ε – коэффициент, учитывающий сопротивления, возникающие при отбрасывании вырезаемого пласта грунта;
υ – скорость движения плуга.
Формула Н.Г. Домбровского, в расчете которой учитывается не только резание грунта, а весь процесс копания в целом:
Ρ = k b h= k F,
где k – удельное сопротивление копанию грунта РО;
b – ширина копания;
h – глубина копания;
F – площадь резания.
А.Н. Зеленин первый кто предложил ввести в расчет определения силы резания коэффициент плотности грунта, который определялась при помощи ударника ДорНИИ.
Сила резания, возникает при копании элементарными профилями
где − число ударов ударником ДорНИИ, для расчетного грунта
− угол резания;
Z – коэффициент учитывающий наличие зубьев;
b – ширина ковша.
Определение усилия резания на кромке ковша при работе в грунтах III категории.
По Домбровскому
Р = b·h· k = 1∙0,40∙1,8 = 100 кН,
где h – глубина резания, равная 40 см;
k – удельное сопротивление грунта копанию, 250 кПа;
b – ширина ковша, м.
По Зеленину
Здесь для ковшей с зубьями
максимальная толщина стружки.
где − число ударов ударником ДорНИИ, для расчетного грунта
− угол резания sin30°;
Z – коэффициент учитывающий наличие зубьев, Z=0,6…0,8;
Rk – радиус копания, м,
− угол поворота, отвечающий срезанию стружки максимальной толщины.
При копании рукоятью
38 см.
Определение необходимой толщины стальных листов рамы
Усилие в шарнире сочленения стрелы равно усилию развиваемому гидроцилиндром. Проведем расчет опасного сечения II-II проушины (кронштейна шарнира) на изгиб от наибольшей силы. Изгибающий момент в сечении определится по формуле:
M=Rn*12.5=275*12.5=35000 kH*см
Принимая это нагружение за случайное, берем значение коэффициента запаса, равное 1,4. Материал Ст. 3, допустимое напряжение приблизительно 13,70. Необходимый момент сопротивления 2554 см3. Соответственно, момент инерции равняется 58700 см4.
Сечение II-II коробчатое равностенное.
Тогда принимаем толщин листа стенки равной 20 мм.
Из условий наибольшего возможного нагружения металла на смятие в нижнем отверстии крепления зуба определим диаметр этого отверстия (диаметр пальца).
Допустимое напряжение принимаем 1900 kH/см2.
В месте крепления пальца щеки проушин усилены приваренным стальным листом (3 см) Таким образом, суммарная толщина металла в отверстии 5 cм.
Принимая = 12 см, проверим напряжение на срез в металле пальца: 9,20 kH/см2
Напряжение на изгиб при расстоянии между опорами (парными проушинами), равном примерно 10 см, определится 60 kH/см2
Предел текучести металла пальца должен быть не меньше 69 kH/см2
Выбираем сталь 40Х с пределом текучести 80 kH/мм2
Посмотреть на карте
Мы гарантируем выполнение в срок, строгое соответствие ГОСТ, полное соответствие ТЗ по Договору
Посмотреть все услуги КБ
Vk Instagram Youtube
Проектирование и анализ экскаватора – IJERT
Проектирование и анализ экскаватора
А.
В. Прадип*, CH. Джагадиш**, С.В.С. Сатья Прасад***
* (Машиностроение, Инженерный колледж СВП)
**(Машиностроение, Инженерный колледж СВП)
***(Машиностроение, Инженерный колледж СВП)
РЕФЕРАТ
Основной целью проекта является проектирование каждого компонента экскаватора, его сборка и анализ зубьев ковша из различных материалов с учетом ударной нагрузки на них. Деформации, напряжения фон Мизеса и энергии деформации сравниваются для различных материалов, и необходимо найти оптимальный материал с меньшим весом, высокой прочностью и хорошей устойчивостью. Таким образом, мы можем получить ковш меньшего веса и высокой прочности, что дает экономию материалов и производственных затрат. Проектирование и сборка выполняются в CATIA, а анализ выполняется в ANSYS 9.0005
1. Введение
Экскаватор в основном состоит из четырех основных функциональных систем:
1. База с системой перемещения 2. Система трансмиссии 3. Операционная система 4. Экскаваторное устройство
Основание с системой перемещения: оно состоит из основного основания, на котором установлены различные детали, такие как двигатель, опора для рук, кабина водителя, наряду с этим он имеет механизм цепного ремня для перемещения машины с одного места на другое.

- Система передачи
: она состоит из двух рычагов, которые используются для передачи движения и называются передним рычагом и задним рычагом.
Операционная система: состоит из штокового механизма гидравлического цилиндра, который используется для привода системы трансмиссии.
Экскаваторная система: содержит ковш и рычажный механизм ковша, который соединен с передней стрелой с помощью штокового механизма с гидравлическим цилиндром и используется для подъема материала.
Гидравлический экскаватор чаще всего используется для рытья камней и почвы, но с его многочисленными насадками он также может использоваться для резки стали, разрушения бетона, бурения отверстий в земле, укладки гравия на дорогу перед мощением, дробления камней, стали. , и бетон, и даже
скашивание ландшафтов. Гидравлический экскаватор имеет рабочий вес более 12000 кг.
Компоненты экскаватора
Основные основные компоненты экскаватора следующие:
РУКА: Стрела состоит из двух гидравлических цилиндров, ковша и стрелы, которая находится в верхней части рукояти.
Рука движется в двух частях так же, как человеческая рука в запястье и локте.ШТОК ЦИЛИНДРА: Внутри гидравлического цилиндра находится шток, который является внутренней частью цилиндра, и поршень, который находится на конце цилиндра и позволяет рычагу двигаться с помощью масла. Если бы в цилиндре не было масла, поршень опустился бы на дно, но из-за природы масла его объем всегда остается одним и тем же. Масло прокачивается через конец поршня и, в свою очередь, проталкивает шток через цилиндр, создавая таким образом движение одной или обеих частей рычага. Контролируя количество масла, прокачиваемого через клапан, можно легко управлять точностью рычага. Это движение активируется с помощью регулирующих клапанов, расположенных внутри кабины, где находится сиденье водителя.
ДВИГАТЕЛЬ: Мощность в автомобиле обычно поступает непосредственно от двигателя, но в гидравлическом экскаваторе она работает по-другому. Поскольку машина использует большую силу, она может двигаться, превращая энергию, которую она получает от двигателя, в гидравлическую энергию.

КАЧЕЛИ: Одной из функций этой машины является ее способность поворачиваться. Поворот экскаватора позволяет ему поворачиваться. Поворотный круг состоит из внешней обоймы, внутренней обоймы, шарикоподшипников и шестерни. Когда внешняя обойма вращается, шестерня движется вместе с неподвижной внутренней обоймой. Шариковые подшипники работают, чтобы гарантировать, что это делается плавно.
КАБИНА: Верхняя конструкция, где расположено сиденье водителя и органы управления.
позиции. С помощью двух рычагов по бокам и двух спереди водитель может перемещать оба рычага одновременно, чтобы контролировать направление и высоту.
НОГИ: Существует два типа оснований экскаваторов. Один тип имеет колеса, как у обычного автомобиля, также известный как колесный тип. Из-за характера основания он в основном используется на твердых поверхностях, таких как бетон и гравий. Второй тип известен как гусеничный из-за его способности двигаться по менее устойчивым поверхностям, таким как грязь, песок.
В отличие от колесного типа, гусеничный покрывает большую часть земли и, таким образом, не погружается в землю. Как следует из названия, он ползает с помощью механизма, похожего на конвейерную ленту. Эту машину можно использовать только на месте, и ее нужно будет перевозить на другом транспортном средстве, чтобы добраться из одной точки в другую.СТРЕЛА: Стрела экскаватора — это компонент, используемый для работы экскаватора, части тяжелой техники, используемой для рытья ям или иного перемещения больших объемов материала. Экскаватор обычно состоит из основания с гусеницами или гусеницами, прикрепленными к вращающимся колесам, а также блока, известного как дом, который вращается на 360 градусов, поэтому оператор может получить доступ к материалу со всех сторон машины без изменения положения всего блока. Стрела экскаватора выступает за переднюю часть дома и обычно состоит из двух частей, которые сочленяются для лучшего доступа.
КОВШ: Ковш крепится к концу стрелы экскаватора.
Ковш отвечает за копание, а также за хранение материалов, которые необходимо переместить. Все компоненты стрелы экскаватора, а также сам ковш управляются гидравликой; внешняя стойка, заполненная жидкостью, обычно под давлением может находиться какое-то масло, в результате чего внутренний поршень толкается вперед. Когда давление сбрасывается, поршень втягивается. Таким образом, двумя частями стрелы экскаватора, а также ковшом можно управлять из кабины оператора машины.
Экскаватор использует
Экскаваторы используются по-разному:
Рытье траншей, ям, фундаментов
Транспортировка материалов
Кусторез с гидравлическими насадками
Лесохозяйственные работы
снос
Общая планировка/озеленение
Подъем тяжелых грузов, напр. подъем и укладка труб
Горнодобывающая промышленность
Речные дноуглубительные работы
Типы экскаваторов
Экскаваторы с длинной стрелой
Экскаваторы
Экскаваторы с бортовым поворотом
Паровые экскаваторы
самосвальные экскаваторы
Экскаваторы с буксируемым канатом
роторные экскаваторы
мини-экскаваторы
мини-экскаваторы и др.

Введение в CATIA
CATIA (компьютерное трехмерное интерактивное приложение) — многоплатформенный коммерческий программный пакет CAD/CAM/CAE, разработанный французской компанией Dassault Systems. CATIA предлагает решение для моделирования сложных и интеллектуальных продуктов с помощью системного инженерного подхода. Он охватывает определение требований, системную архитектуру, моделирование поведения и создание виртуального продукта или встроенного программного обеспечения. CATIA используется в автомобильной и аэрокосмической промышленности для проектирования изделий и инструментов для автомобилей и самолетов. CATIA используется в различных отраслях промышленности по всему миру. Некоторые из этих отраслей включают; Аэрокосмическая промышленность, бытовая техника, архитектура, автомобилестроение, строительство, товары народного потребления, электроника, медицина, мебель, машиностроение, пресс-формы и штампы и судостроение.
Дизайн компонентов
Сборка в CATIA
Анализ ковша экскаватора в ANSYS
Ковш экскаватора должен соприкасаться с веществом, которое необходимо удалить, поднимать и нести груз и где-то его сбрасывать.
Во время встречи с материалом на зубья ковша приходится внезапный удар высокого давления. Следовательно, он должен выдерживать такую высокую ударную нагрузку. Итак, анализ ковша был проведен с учетом различных материалов. Свойства материала, такие как вес, соотношение ядов и модуль Юнга, передаются в ANSYS, и результаты сравниваются.
СТАЛЬ: Сталь представляет собой сплав железа и других элементов, включая углерод. Когда углерод является основным легирующим элементом, его содержание в стали составляет от 0,002% до 2,1% по весу. углерод, марганец, фосфор, сера, кремний и следы кислорода, азота и алюминия. Его модуль Юнга составляет 210 гПа. Его вес на 1 куб. м составляет 7840 кг. В случае емкости ковша экскаватора его вес составляет 700 кг.
ЧУГУН: Чугун представляет собой железо или сплав железа, который нагревают до жидкого состояния, а затем заливают в форму для затвердевания. Обычно изготавливается из чугуна. Углерод и кремний являются основными легирующими элементами в количестве от
до 4% по весу и от 1 до 3% соответственно.
Его модуль Юнга составляет 89 гПа. Для 1 м3 его вес составляет 7300 кг. В случае емкости ковша экскаватора его вес составляет 650 кг.
Кованое железо: Кованое железо представляет собой сплав железа с очень низким содержанием углерода, в отличие от чугуна. Многие предметы, прежде чем они стали изготавливаться из мягкой стали, производились из кованого железа, включая проволоку, цепи, рельсы, гайки, болты. Его модуль Юнга составляет 190 гПа. Для 1 куб.м его вес составляет 7550 кг. В случае емкости ковша экскаватора его вес составляет 675 кг.
Зацепление ковша
Генерация сетки — один из наиболее важных аспектов инженерного моделирования. Слишком большое количество ячеек может привести к длительному запуску решателя, а слишком малое количество может привести к неточным результатам. Технология создания сетки ANSYS позволяет сбалансировать эти требования и получить правильную сетку для каждого моделирования максимально автоматизированным способом.
Технология создания сетки ANSYS основана на сильных сторонах автономных, лучших в своем классе инструментов создания сетки. Самые сильные стороны этих отдельных инструментов были объединены ввместе в единой среде для создания одной из самых мощных доступных сеток.
Деформации
СТАЛЬ
Кованое железо
ЧУГУН
Фон Мизес Стресс
СТАЛЬ
Кованое железо
ЧУГУН
Энергия деформации
СТАЛЬ
Кованое железо
ЧУГУН
Заключение
Проектирование каждого компонента экскаватора, а также сборка выполняются в CATIA. Построение сетки и анализ ковша экскаватора выполняется в программе ANSYS. Как правило, ковш экскаватора изготавливается из стали, но наш анализ проводится для трех материалов: стали, кованого железа и чугуна.
Мы нашли напряжения фон Мизеса, деформации и энергию деформации для всех трех материалов. Сравнения между этими тремя материалами следующие:
Вес:
- Сталь
: вес 1 куб.м 7840кг.
Чугун: Вес 1 куб.м 7300 кг.
Кованое железо: Вес 1 куб.м 7550кг. Деформация:
Сталь имеет наименьшую деформацию по сравнению с кованым железом и чугуном, но кованое железо также может выдерживать нагрузки с меньшей деформацией. Напряжения фон Мизеса:
Сталь и кованое железо имеют меньшие напряжения, возникающие по сравнению с чугуном.
Энергия деформации:
Кованое железо обладает большей энергией деформации для поддержания нагрузки по сравнению со сталью и чугуном.
Кованая банка имеет малый вес, высокую энергию деформации, малые напряжения, развивающиеся в ней и проявляющие номинальную деформацию. Обычно для ковша экскаватора повсеместно используется сталь, но если мы заменим сталь кованым железом, мы получим следующие преимущества:
Кованое железо прочное, ковкое, пластичное и легко сваривается.
При той же прочности мы можем уменьшить вес, тем самым экономя производственные затраты, материалы и время. Кованое железо чрезвычайно прочное. Его практически невозможно сломать или повредить. Тем не менее, вы должны быть осторожны, чтобы сохранить хорошую краску на кованом железе, чтобы избежать ржавчины, но в остальном он почти не требует обслуживания и устойчив к атмосферным воздействиям.
Учитывая все вышеперечисленные преимущества, кованое железо можно заменить сталью (материалом ковша экскаватора) для достижения лучших результатов.
Ссылки
http://en.wikipedia.org/wiki/Кованое_железо
http://www.infobarrel.com/Some_Advantages_ of_Wrought_Iron_Patio_Furniture
http://info.todayspatio.com/bid/68109/Five- Reasons-Wrought-Iron-Furniture-Is-Worth-The-Investment
http://www.efunda.com/materials/alloys/alloy_home/steels_properties.cfm
http://en.wikipedia.

6
0346
2003. №7. С. 38 – 43.
Swapnil S.Nishane 1, Dr. S.C.Kongre 2, Prof. K.A. Pakhare) International Journal of Research in Advent Technology, Vol.4, No.3, March3016 E-ISSN: 2321-9637 Available online atwww.ijrat.org

Рука движется в двух частях так же, как человеческая рука в запястье и локте.
В отличие от колесного типа, гусеничный покрывает большую часть земли и, таким образом, не погружается в землю. Как следует из названия, он ползает с помощью механизма, похожего на конвейерную ленту. Эту машину можно использовать только на месте, и ее нужно будет перевозить на другом транспортном средстве, чтобы добраться из одной точки в другую.
Ковш отвечает за копание, а также за хранение материалов, которые необходимо переместить. Все компоненты стрелы экскаватора, а также сам ковш управляются гидравликой; внешняя стойка, заполненная жидкостью, обычно под давлением может находиться какое-то масло, в результате чего внутренний поршень толкается вперед. Когда давление сбрасывается, поршень втягивается. Таким образом, двумя частями стрелы экскаватора, а также ковшом можно управлять из кабины оператора машины.
Его модуль Юнга составляет 89 гПа. Для 1 м3 его вес составляет 7300 кг. В случае емкости ковша экскаватора его вес составляет 650 кг.
Технология создания сетки ANSYS основана на сильных сторонах автономных, лучших в своем классе инструментов создания сетки. Самые сильные стороны этих отдельных инструментов были объединены в
Добавить комментарий