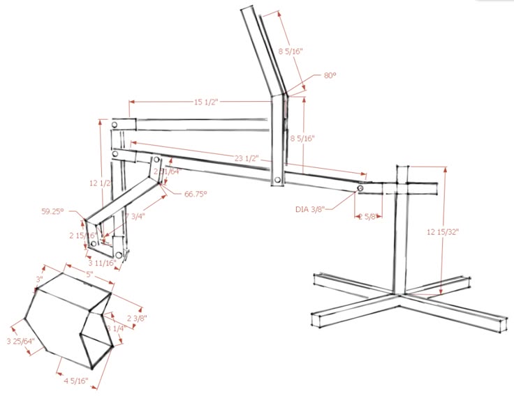
Экскаватор своими руками чертежи: самодельный для дачи, прицепной, чертеж, как сделать, на базе автомобиля
Новости — Центр промышленной поставки
09 января
МИНИ-ЭКСКАВАТОРЫ отечественного производства.
Прицепной мини-экскаватор (миниэкскаватор прицепного типа) российского производства EcoDrag уникален по своим техническим возможностям, качеству и стоимости по сравнению с аналогичной техникой – самоходными гусеничными мини-экскаваторами. Эффективность производимых нашей компанией российских мини-экскаваторов несравнима с возможностями наемных рабочих бригад. Навесной экскаватор EcoDrage расширит диапазон работ, которые будет способен выполнять ваш минитрактор.
Особо хотелось бы отметить, что помимо традиционного землеройного применения, имеется опыт использования машины при очистке речного русла путем ее крепления к понтону. Также экскаватор может использоваться как мини-погрузчик за счет специальных ухватов (например, при демонтаже старых домов, расчистке строительного мусора, уборке кусков бетона, камней, бревен). Клиентами нашей компании также стали владельцы приусадебных и садовых участков, фермеры, частные предприниматели, компании.
В настоящее время в перечисленных сферах широко распространен труд наемных бригад, не использующих специальную технику, основным рабочим инструментом которых является примитивный ручной инструмент. Привлечение рабочей силы, безусловно, сопряжено с различными организационными трудностями, а производительность напрямую зависит от трудовой дисциплины. В этом отношении наше оборудование вне конкуренции.
Для полноценного функционирования техники требуется всего один оператор, не обладающий специализированными навыками.
Техника маневренна и удобна в использовании: при необходимости экскаватор просто откатывается в нужное положение вручную или путем отталкивания от грунта самой экскаваторной стрелой.
Наша компания является промышленным производителем мини-экскаваторов EcoDrag, осуществляя гарантийное и полное техническое обслуживание. Наша техника уже работает в различных регионах России. В наличии все запчасти и комплектующие: гидроцилиндры для прицепного экскаватора, РВД, двигатели, ковши и так далее.
Мы приветствуем любые предложения по сотрудничеству как от организаций, так и от частных лиц. Для постоянных и оптовых клиентов наша компания готова предоставить скидки. Приглашаем региональных дилеров и распространителей нашего товара.
Надеемся на длительное, плодотворное и взаимовыгодное сотрудничество.
‹ Вернуться к разделу
Делаем детский экскаватор в песочницу из металлолома
этот находится в центральной песочнице села.
образец игрушки углядел на однокласниках и собрать из металлолома(обрезков водопроводных труб, старого автодиска.
листика железа) при наличии сварки, болгарки и сварочной маски хамелеон не составило особого труда. делать пришлось несколько- один домой, второй внукам в детский сад, третий другим внукам в другой детсад и четвёртый на детскую площадку центра села. чертежей и размеров нет делалось на глазок и примерялось по внуку
Конкурсы
Теги: детский сад , игровая мебель
Другие публикации от Свистунов Л.
- вторая жизнь детской коляски 0
- Обзор дрели-шуруповёрта ДА-10/14,4М3 Интерскол 0
- Автомобиль своими руками 0
Каким бы не был богатым опыт специалиста, и как бы он не был уверен в себе, иногда ему нужно посоветоваться с кем-то.
Общение на просторах интернет-сети уже давно стало привычным нам. Разнообразные пользователи сети – будь то профессионал или много знающий любитель – могут выставить в сеть лайфхаки (простые полезные советы на разные темы), которые могут быть с пользой применены для вашего дома.
Какие плюсы пользования ресурсами форума?
- Постоянный поток интересной информации о новых идеях построек.
- Простые и полезные советы для строительства.
- Возможность общения с интересными людьми, опытными мастерами своего дела.
- Рекомендации о выборе инструмента или материалов.
- Также приятным плюсом является отсутствие рекламы, ведь пользователи такие же потребители, как и вы сами.
На нашем форуме размещены все свежие новости строительства, ведь наши специалисты всегда держат руку на пульсе событий строительства. У нас вы найдете полезную информацию для эксплуатации помещения, инвентаря и так далее.
Многие считают полезным делать для дома больше своими руками, ведь это и полезно для здоровья, выгодно экономически, и предоставляет некий моральный комфорт. И возникает логичный вопрос: «Как самому сделать?» Ответы можно получить, полистав наш сайт. Именно после посещения этого форума вы ощутите полностью все плюсы. На этом интернет-ресурсе вы найдете сведения для обустройства дачи своими руками. Но многие из тех рекомендаций можно будет учесть и при обустройстве квартиры. Для осуществления бытовых проектов разного масштаба нужен инвентарь. Для общей консультации посетителей сайта создается обзор инструментов, где информация подана просто и доступно.
DIY 3D Kids Wood Excavator Wall Decor
Занятым маленьким строителям понравится этот самодельный настенный декор в виде экскаватора. Он станет потрясающим 3D дополнением к детской комнате или детской комнате, оформленной в стиле транспорта.
Соедините экскаватор с другими детскими транспортными средствами «сделай сам» — самосвал , бетономешалка и бульдозер — и у вас будет все, что нужно для привлечения внимания к стене.
Прокрутите вниз, чтобы найти шаблоны и полные инструкции по их созданию!
Поставки:
- Ножницы
- Скачать рисунок экскаватора здесь
- карандаш
- деревянные кусочки ( 4 крупные деревянные кружки , 1 Смол. )
- квадратный деревянный дюбель (диаметром 3/4 дюйма)
- круглый деревянный дюбель (диаметром 1/2 дюйма)
- малярная панель из березы размером 14 x 14 дюймов
- очень прочный клей для дерева, такой как Titebond III
- прочный прозрачный клей (например, J B Weld Clear Epoxy или Gorilla Clear Epoxy ) 1/2 дюйма, 1/4 дюйма и 3/4 дюйма)
- грунтовка
- краска
ШАГ 1: СКАЧАТЬ ШАБЛОНЫ И ВЫРЕЗАТЬ
Сначала скачать и вырезать шаблон экскаватора куски. Проверьте настройки принтера и убедитесь, что масштаб печати установлен на 100 %, чтобы выкройки распечатывались в правильном размере.
Затем обведите выкройки на МДФ (древесноволокнистая плита средней плотности) или гладкой березовой фанере, отмечая необходимую толщину каждой детали. Я использовал МДФ, так как он имеет более гладкую поверхность и обычно дешевле березы. Когда закончите трассировку, используйте лобзик или ленточную пилу, чтобы вырезать части автомобиля.
Альтернативой самостоятельной резке деталей является поиск в Интернете местного предприятия с фрезерным станком с ЧПУ (например, WoodCraft), которое может вырезать для вас детали автомобиля. Такие предприятия, как правило, уже имеют запас древесины, поэтому все, что им нужно, — это ваш набор шаблонов.
Нижнюю часть экскаватора необходимо вырезать из МДФ или фанеры толщиной 1 дюйм. Чтобы сделать один дюйм толщиной, просто склейте вместе 2 части толщиной 1/2 дюйма, как показано на фотографии ниже. Таким образом, 1/2 + 1/2 = 1 дюйм толщины, который вам понадобится для этой детали.
ШАГ 2: СОБЕРИТЕ ОСТАЛЬНЫЕ ПРИНАДЛЕЖНОСТИ
В дополнение к деталям, которые вы вырезаете из МДФ или фанеры, вам также потребуются детали, показанные ниже: 14-дюймовая квадратная деревянная панель , 4 деревянных круга , 2 деревянные пуговицы , деревянная заглушка или (или замените 1/2-дюймовую пуговицу), маленькие деревянные прямоугольники, деревянный квадратный штифт 3/4 дюйма, обрезанный до длины 14 дюймов (такой же ширины, как деревянная панель), круглый деревянный штифт диаметром 1/2 дюйма и тонкая тонкая деревянная полоска (например, деревянная палочка для размешивания кофе или длинная палочка для эскимо).
Возьмите круглый деревянный дюбель диаметром 1/2 дюйма и отрежьте 1-дюймовый кусок от конца. Эта часть станет выхлопной трубой для экскаватора. Он будет приклеен поверх задней части экскаватора.
Когда вы объединяете деревянные детали, вырезанные из МДФ или фанеры, с деревянными частями, которые вы покупаете, все будет выглядеть следующим образом:
ШАГ 3: ГРУНТОВКА И ПОКРАСКА
Используйте столярный клей, чтобы прикрепить некоторые кусочки вместе. Склейте кабину экскаватора, заднюю часть и нижнюю часть вместе. Затем приклейте маленький дюбель (выхлопную трубу) и маленькие прямоугольники к задней части экскаватора. Затем склейте две части руки вместе и добавьте маленькую пуговицу или деревянную заглушку на соединение, где две части соприкасаются.
Нанесите грунтовку на все детали (если только вы не используете образцы краски, сочетающие краску и грунтовку). Когда грунтовка высохнет, при необходимости отшлифуйте наждачной бумагой с зернистостью 220 или 320.
Далее, краска!
ШАГ 4: СБОРКА
После того, как краска высохнет, соберите колеса и шестерни на нижней части экскаватора, как показано ниже.
Затем соберите остальные части экскаватора, облака и дорогу поверх деревянной панели, чтобы создать настенный декор в виде 3D-экскаватора. Используйте сильный клей, такой как Titebond, J-B Weld Clear Epoxy или 9.0005 Прозрачная эпоксидная смола Gorilla , чтобы соединить все вместе.
Настенный рисунок для детского экскаватора своими руками готов и готов украсить детскую комнату строительной тематикой или транспортной детской!
artUcreate является дочерней компанией Etsy, Michael’s и Amazon Associates LLC.
Экскаватор — сверхпростой
Копать, копать, копать! Экскаваторы — потрясающие землеройные машины! Возможно, вы видели их на стройках — они могут копать большие ямы своей длинной рукой и ведром, похожим на большую лопату! Сделайте свой собственный экскаватор, который сможет копать и сбрасывать наш строительный материал с помощью нашего экскаватора! Собирая свой экскаватор, вы узнаете обо всех различных частях этой специальной строительной машины.
Как только вы закончите, попробуйте сделать наш самосвал, чтобы перевезти всю грязь, которую выкапывает экскаватор!
Вещи, которые вам понадобятся
- Плотная бумага нескольких цветов. Мы использовали желтый черный и синий.
- Лента
- Маркер
- Клей-карандаш
- Крепеж с круглой головкой
- Дырокол
- Линейка
- Крышка от бутылки или что-то круглое, чтобы обвести колеса. Наш был шириной 2 дюйма.
- Карандаш белого цвета – для обводки на черной бумаге
Мы будем делать следующие части экскаватора:
- Гусеница
- Противовес кабины и двигателя
- Стрела
- Вращающаяся платформа, известная как «дом»
- Рукоять
- Ковш
Изготовление гусеницы и поворотной платформы
Гусеница — это часть экскаватора, которая больше всего похожа на колеса, она перемещает экскаватор. Белым карандашом нарисуйте прямоугольник, который будет дорожкой.
Наш трек примерно 2 на 8 дюймов. Затем используйте крышку от бутылки или что-то еще круглое, чтобы создать изогнутые края на обоих концах дорожки. Теперь нарисуйте еще один прямоугольник, который будет вращающейся платформой, называемой домом. Это часть экскаватора, которая соединяет гусеницу с остальной частью транспортного средства. Он может вращаться и двигаться, поэтому экскаватор может поворачиваться, оставаясь на одном месте! Размер нашей вращающейся платформы составляет около 2 на 5 дюймов.
Сделать кабину
В кабине сидит водитель. Двигатель и противовес также являются частью кабины. Вы можете сделать свою кабину и экскаватор любого цвета — мы использовали желтый для классического вида. На чертежной бумаге нарисуйте прямоугольник. Наш размер 4 на 5 дюймов. Затем на одном углу нарисуйте еще один маленький прямоугольник, чтобы вырезать. Скруглите края верхних углов, чтобы сделать их гладкими. В задней части кабины находится двигатель и противовес. Наличие противовеса в экскаваторе важно, чтобы он не опрокинулся!
Внутри гусеницы
На том же листе плотной бумаги нарисуйте еще один длинный прямоугольник, который будет внутри дорожки.
Изготовление стрелы, рукояти и ковша
Стрела представляет собой угловой рычаг, который крепится к кабине экскаватора. Рука прикреплена к стреле и может двигаться вверх и вниз. Ведро находится на конце руки, оно похоже на большую лопату. Это специальная копающая часть экскаватора! Чтобы сделать стрелу и рукоять, нарисуйте два прямоугольника меньшего размера на одном конце. Наши примерно 1,5 на 5 дюймов. Чтобы сделать ведро, нарисуйте форму ведра, которая подойдет к маленькому концу одного из прямоугольников.
На другом листе плотной бумаги нарисуйте прямоугольник, чтобы сделать окно для кабины. Мы использовали синюю бумагу, и размер нашего окна составляет примерно 2 дюйма на 2,5 дюйма.
Приготовьтесь вырезать все фигуры! Воспользуйтесь ножницами и вырежьте их.
Теперь пришло время собрать все части вашего экскаватора! Используя клей-карандаш, приклейте внутреннюю часть дорожки к дорожке. Затем приклейте вращающуюся платформу к верхней части гусеницы, а кабину к верхней части вращающейся платформы. Приклейте окно к кабине.
Расположите и разместите другие части. Больший конец стрелы крепится к кабине, рукоять крепится к стреле, а ковш — это меньший конец стрелы. С помощью дырокола сделайте три отверстия. Один, где соединяются стрела и кабина, другой, где соединяются стрела и рукоять, и третий, где соединяются рукоять и ковш, чтобы убедиться, что отверстие проходит через обе части. Затем прикрепите детали, вставив круглые застежки через отверстия. Теперь фигуры могут двигаться!
Теперь вы можете сделать материал для экскаватора! Нарисуйте и вырежьте немного грязи, гравия или песка для вашего экскаватора из листа плотной бумаги.
Наконец, переверните экскаватор и добавьте в заднюю часть ковша карман для материала для копания.

Добавить комментарий